Italiano
19.500 €

BILOCALE ALL'ASTA

Appartamento in vendita • Varese - Via Valganna , 59
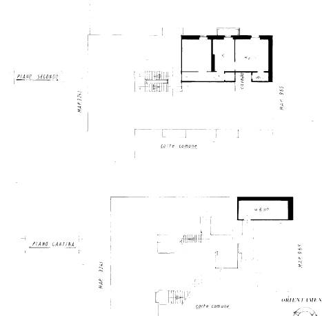
appartamento al secondo piano composto da due locali, più servizi, con cantina al piano cantinato. Della superficie commerciale di 77 mq, dotato di riscaldamento autonomo.
appartamento al secondo piano composto da due locali, più servizi, con cantina al piano cantinato. Della superficie commerciale di 77 mq, dotato di riscaldamento autonomo.
AFFARI ALL'ASTA è uno studio di consulenza che si occupa di aste immobiliari e saldo stralcio, dove il cliente viene seguito in tutto il percorso relativo all' acquisto tramite aste giudiziarie.
L' immobile viene venduto dal tribunale ed il prezzo indicato si riferisce all' offerta minima.
Contattaci per fissare un appuntamento per avere maggiori informazioni.
Per maggiori informazioni:
MILANO, VIA GIUSEPPE TARTINI, 12 (MI)
+39 3392588984
+39 3427176507

Per maggiori informazioni:
MILANO, VIA GIUSEPPE TARTINI, 12 (MI)
+39 3392588984
+39 3427176507

Caratteristiche principali
Codice
SSET86
Città
Varese
Categoria
Appartamento
Prezzo
19.500 €
Locali
2
Mq
77
Piano
2
Classe energetica
G
Stato Immobile
Buono
Grado
Medio
Posizione
Centro
Panorama
Vista Aperta
Orientamento
Nord Ovest Sud Est
Giardino
Cortile
Arredi
Semi Arredato
Tipo Soggiorno
Sala da Pranzo
Tipo Cucina
A Vista
Riscaldamento
Autonomo
Tipo Riscaldam.
Caldaia
Tipo Impianto
Radiatori
Fonte Energetica
Metano
Infissi
Legno
Serramenti
Buono
Persiana
Persiana Legno
Pavim. Giorno
Ceramica
Pavim. Notte
Ceramica
Pavim. Cucina
Ceramica
Pavim. Bagno
Ceramica
Mappa
Via Valganna 59, Varese (VA)
Condividi su
Cookie preference