Italiano
57.600 €

QUADRILOCALE ALL'ASTA

4 o più locali in vendita • Fara Gera d'Adda - Via longobardica, 22
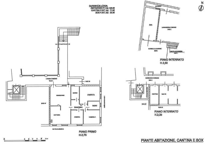
Abitazione di tipo economico al piano 1 costituita da soggiorno/cottura, tre camere, disimpegno e due bagni, oltre alla cantina al Piano S1. Autorimessa. Della superficie commerciale di 130 mq
Abitazione di tipo economico al piano 1 costituita da soggiorno/cottura, tre camere, disimpegno e due bagni, oltre alla cantina al Piano S1. Autorimessa. Della superficie commerciale di 130 mq
AFFARI ALL'ASTA è uno studio di consulenza che si occupa di aste immobiliari e saldo stralcio, dove il cliente viene seguito in tutto il percorso relativo all' acquisto tramite aste giudiziarie.
L' immobile viene venduto dal tribunale ed il prezzo indicato si riferisce all' offerta minima.
Contattaci per fissare un appuntamento per avere maggiori informazioni.
Per maggiori informazioni:
MILANO, VIA GIUSEPPE TARTINI, 12 (MI)
+39 3392588984
+39 3427176507

Per maggiori informazioni:
MILANO, VIA GIUSEPPE TARTINI, 12 (MI)
+39 3392588984
+39 3427176507

Caratteristiche principali
Codice
SSET277
Città
Fara Gera d'Adda
Categoria
4 o più locali
Prezzo
57.600 €
Locali
4
Mq
130
Box
1
Piano
1
Classe energetica
G
Stato Immobile
Buono
Grado
Medio
Posizione
Centro
Panorama
Vista Aperta
Orientamento
Nord Ovest Sud Est
Giardino
Cortile
Arredi
Semi Arredato
Tipo Soggiorno
Sala da Pranzo
Tipo Cucina
A Vista
Riscaldamento
Autonomo
Tipo Riscaldam.
Caldaia
Tipo Impianto
Radiatori
Fonte Energetica
Metano
Infissi
Legno
Serramenti
Buono
Persiana
Tapparella PVC
Pavim. Giorno
Ceramica
Pavim. Notte
Ceramica
Pavim. Cucina
Ceramica
Pavim. Bagno
Ceramica

Accessori:

Mappa
Via longobardica 22, Fara Gera d'Adda (BG)
Condividi su
Cookie preference