Italiano
17.250 €

BILOCALE ALL'ASTA

2 locali in vendita • Legnano - Piazza r. achilli, 7
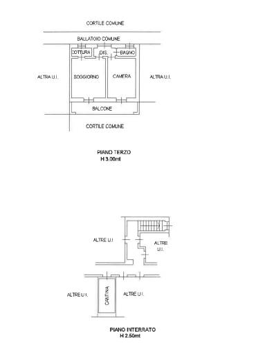
appartamento ad uso abitativo posto al piano terzo di edificio condominiale, avente accesso dalla scala B con annesso accessorio di cantina a piano interrato. L'appartamento, cui si accede da ballatoio comune, è composto da piccolo vano di ingresso, locale soggiorno/pranzo con annessa piccola zona cottura, camera da letto, servizio igienico, balcone esclusivo lungo il fronte dei due vani principali. Superficie commerciale mq 45,00
AFFARI ALL'ASTA è uno studio di consulenza che si occupa di aste immobiliari e saldo stralcio, dove il cliente viene seguito in tutto il percorso relativo all' acquisto tramite aste giudiziarie.
L' immobile viene venduto dal tribunale ed il prezzo indicato si riferisce all' offerta minima.
Contattaci per fissare un appuntamento per avere maggiori informazioni.
Per maggiori informazioni:
MILANO, VIA GIUSEPPE TARTINI, 12 (MI)
+39 3392588984
+39 3427176507

Per maggiori informazioni:
MILANO, VIA GIUSEPPE TARTINI, 12 (MI)
+39 3392588984
+39 3427176507
Caratteristiche principali
Codice
SOT8
Città
Legnano
Categoria
2 locali
Prezzo
17.250 €
Locali
2
Mq
45
Piano
3
Classe energetica
G
Stato Immobile
Buono
Grado
Medio
Posizione
Centro
Panorama
Vista Aperta
Orientamento
Nord Ovest Sud Est
Giardino
Cortile
Arredi
Semi Arredato
Tipo Soggiorno
Sala da Pranzo
Tipo Cucina
A Vista
Riscaldamento
Autonomo
Infissi
Legno
Serramenti
Buono
Persiana
Tapparella Legno
Pavim. Giorno
Ceramica
Pavim. Notte
Ceramica
Pavim. Cucina
Ceramica
Pavim. Bagno
Ceramica

Accessori: Aria Condizionata

Mappa
Piazza r. achilli 7, Legnano (MI)
Condividi su
Cookie preference