Italiano
144.750 €

TRILOCALE ALL'ASTA

3 locali in vendita • Milano (Baggio/ Forze Armate/ Quinto Romano) - Via Osteno, 2
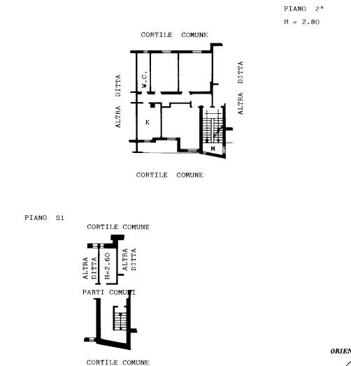
In comune di milano, via osteno n. 2 intera piena proprietà di unità immobiliare consistente in: appartamento posto a piano secondo (3° piano f.t.) composto da locale soggiorno, cucina, due camere da letto e servizi, con annesso vano cantina al piano interrato.
In comune di milano, via osteno n. 2 intera piena proprietà di unità immobiliare consistente in: appartamento posto a piano secondo (3° piano f.t.) composto da locale soggiorno, cucina, due camere da letto e servizi, con annesso vano cantina al piano interrato.
AFFARI ALL'ASTA è uno studio di consulenza che si occupa di aste immobiliari e saldo stralcio, dove il cliente viene seguito in tutto il percorso relativo all' acquisto tramite aste giudiziarie.
L' immobile viene venduto dal tribunale ed il prezzo indicato si riferisce all' offerta minima.
Contattaci per fissare un appuntamento per avere maggiori informazioni.
Per maggiori informazioni:
MILANO, VIA GIUSEPPE TARTINI, 12 (MI)
+39 3392588984
+39 3427176507

Per maggiori informazioni:
MILANO, VIA GIUSEPPE TARTINI, 12 (MI)
+39 3392588984
+39 3427176507
Caratteristiche principali
Codice
SOT59
Città
Milano (Baggio/ Forze Armate/ Quinto Romano)
Categoria
3 locali
Prezzo
144.750 €
Locali
3
Mq
89
Piano
2
Classe energetica
G
Stato Immobile
Buono
Grado
Medio
Posizione
Periferia
Panorama
Vista Aperta
Orientamento
Nord Ovest Sud Est
Giardino
Cortile
Arredi
Semi Arredato
Tipo Soggiorno
Sala da Pranzo
Tipo Cucina
A Vista
Riscaldamento
Centralizzato
Tipo Riscaldam.
Caldaia
Tipo Impianto
Radiatori
Fonte Energetica
Metano
Infissi
Alluminio
Serramenti
Buono
Persiana
Persiana Legno
Pavim. Giorno
Ceramica
Pavim. Notte
Ceramica
Pavim. Cucina
Ceramica
Pavim. Bagno
Ceramica
Mappa
Via Osteno 2, Milano (MI)
Condividi su
Cookie preference