Italiano
187.500 €

CINQUE LOCALI ALL'AST

4 o più locali in vendita • Legnano - Via giovanni da legnano, 59
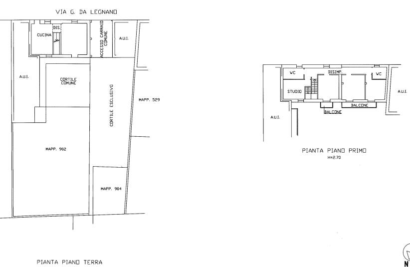
piena ed intera proprietà di appartamento della superficie commerciale di 175,73 mq, a parte di un fabbricato, posto al piano terra e primo, composto a piano terra da cucina, soggiorno e cortile di proprietà esclusiva e al piano primo da quattro camere di cui tre dotate di balconi con affaccio sul cortile interno, due bagni, oltre box attiguo all'abitazione. Box doppio della superficie commerciale di mq 34,70, situato in corpo staccato, affacciantesi sull'area di proprietà esclusiva dell'abitazione. Completa la vendita un cortile comune per la piena proprietà di un mezzo, della superficie commerciale di 63 mq
AFFARI ALL'ASTA è uno studio di consulenza che si occupa di aste immobiliari e saldo stralcio, dove il cliente viene seguito in tutto il percorso relativo all' acquisto tramite aste giudiziarie.
L' immobile viene venduto dal tribunale ed il prezzo indicato si riferisce all' offerta minima.
Contattaci per fissare un appuntamento per avere maggiori informazioni.
Per maggiori informazioni:
MILANO, VIA GIUSEPPE TARTINI, 12 (MI)
+39 3392588984
+39 3427176507

Per maggiori informazioni:
MILANO, VIA GIUSEPPE TARTINI, 12 (MI)
+39 3392588984
+39 3427176507
Caratteristiche principali
Codice
SOT32
Città
Legnano
Categoria
4 o più locali
Prezzo
187.500 €
Locali
5
Mq
175
Box
1
Piano
Terra
Classe energetica
G
Stato Immobile
Buono
Grado
Medio
Posizione
Periferia
Panorama
Vista Aperta
Orientamento
Nord Ovest Sud Est
Giardino
Cortile
Arredi
Semi Arredato
Tipo Soggiorno
Sala da Pranzo
Tipo Cucina
A Vista
Riscaldamento
Autonomo
Tipo Riscaldam.
Caldaia
Tipo Impianto
Radiatori
Fonte Energetica
Metano
Infissi
Legno
Serramenti
Buono
Persiana
Tapparella PVC
Pavim. Giorno
Ceramica
Pavim. Notte
Ceramica
Pavim. Cucina
Ceramica
Pavim. Bagno
Ceramica

Accessori:

Mappa
Via giovanni da legnano 59, Legnano (MI)
Condividi su
Cookie preference