Italiano
356.250 €

QUADRILOCALE ALL'ASTA

4 o più locali in vendita • Milano (Fiera/ Firenze/ Sempione) - Via Giovanni da Procida, 27
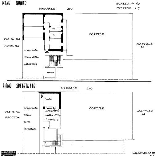
appartamento al quinto piano composto da quattro locali oltre servizi (int. a5), con annesso solaio al piano settimo sottotetto, della superficie commerciale di 109 mq, dotato di ascensore e riscaldamento autonomo
appartamento al quinto piano composto da quattro locali oltre servizi (int. a5), con annesso solaio al piano settimo sottotetto, della superficie commerciale di 109 mq, dotato di ascensore e riscaldamento autonomo
AFFARI ALL'ASTA è uno studio di consulenza che si occupa di aste immobiliari e saldo stralcio, dove il cliente viene seguito in tutto il percorso relativo all' acquisto tramite aste giudiziarie.
L' immobile viene venduto dal tribunale ed il prezzo indicato si riferisce all' offerta minima.
Contattaci per fissare un appuntamento per avere maggiori informazioni.
Per maggiori informazioni:
MILANO, VIA GIUSEPPE TARTINI, 12 (MI)
+39 3392588984
+39 3427176507

Per maggiori informazioni:
MILANO, VIA GIUSEPPE TARTINI, 12 (MI)
+39 3392588984
+39 3427176507
Caratteristiche principali
Codice
SOT300
Città
Milano (Fiera/ Firenze/ Sempione)
Categoria
4 o più locali
Prezzo
356.250 €
Locali
4
Mq
109
Piano
5
Classe energetica
G
Stato Immobile
Buono
Grado
Medio
Posizione
Periferia
Panorama
Vista Aperta
Orientamento
Nord Ovest Sud Est
Giardino
Cortile
Arredi
Semi Arredato
Tipo Soggiorno
Sala da Pranzo
Tipo Cucina
A Vista
Riscaldamento
Autonomo
Tipo Riscaldam.
Caldaia
Tipo Impianto
Radiatori
Fonte Energetica
Metano
Infissi
Legno
Serramenti
Buono
Persiana
Tapparella PVC
Pavim. Giorno
Ceramica
Pavim. Notte
Moquette
Pavim. Cucina
Ceramica
Pavim. Bagno
Ceramica

Accessori: Ascensore

Mappa
Via Giovanni da Procida 27, Milano (MI)
Condividi su
Cookie preference