Italiano
322.200 €

TRILOCALE ALL'ASTA

3 locali in vendita • Milano (Affori/ Bovisa/ Niguarda/ Testi) - Viale Fulvio Testi, 56
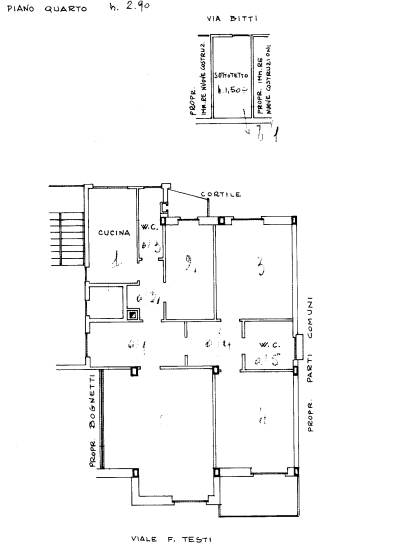
milano (mi) - viale fulvio testi 56 - lotto 1: appartamento al piano 4 composto da 3 locali, cucina abitabile, doppi servizi e vano solaio al piano 8. Della superficie commerciale di circa 117 mq
milano (mi) - viale fulvio testi 56 - lotto 1: appartamento al piano 4 composto da 3 locali, cucina abitabile, doppi servizi e vano solaio al piano 8. Della superficie commerciale di circa 117 mq
AFFARI ALL'ASTA è uno studio di consulenza che si occupa di aste immobiliari e saldo stralcio, dove il cliente viene seguito in tutto il percorso relativo all' acquisto tramite aste giudiziarie.
L' immobile viene venduto dal tribunale ed il prezzo indicato si riferisce all' offerta minima.
Contattaci per fissare un appuntamento per avere maggiori informazioni.
Per maggiori informazioni:
MILANO, VIA GIUSEPPE TARTINI, 12 (MI)
+39 3392588984
+39 3427176507

Per maggiori informazioni:
MILANO, VIA GIUSEPPE TARTINI, 12 (MI)
+39 3392588984
+39 3427176507
Caratteristiche principali
Codice
SOT299
Città
Milano (Affori/ Bovisa/ Niguarda/ Testi)
Categoria
3 locali
Prezzo
322.200 €
Locali
3
Mq
117
Piano
4
Classe energetica
G
Stato Immobile
Buono
Grado
Medio
Posizione
Periferia
Panorama
Vista Aperta
Orientamento
Nord Ovest Sud Est
Giardino
Cortile
Arredi
Semi Arredato
Tipo Soggiorno
Sala da Pranzo
Tipo Cucina
A Vista
Riscaldamento
Centralizzato
Tipo Riscaldam.
Caldaia
Tipo Impianto
Radiatori
Fonte Energetica
Metano
Infissi
Alluminio
Serramenti
Buono
Persiana
Tapparella PVC
Pavim. Giorno
Marmo
Pavim. Notte
Parquet
Pavim. Cucina
Marmo
Pavim. Bagno
Ceramica

Accessori: Aria Condizionata, Ascensore

Mappa
Viale Fulvio Testi 56, Milano (MI)
Condividi su
Cookie preference