Italiano
240.000 €

QUADRILOCALE ALL'ASTA

4 o più locali in vendita • Monza - Via Spluga, 15
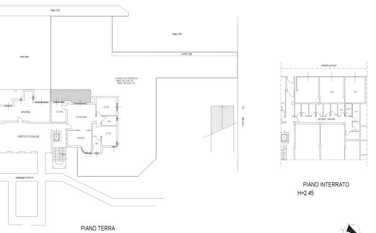
appartamento della superficie commerciale di 118,70 mq, posto al piano terra, giardino in esclusiva, cantina box singolo. Composto da quattro locali con doppi servizi. Termoautonomo
appartamento della superficie commerciale di 118,70 mq, posto al piano terra, giardino in esclusiva, cantina box singolo. Composto da quattro locali con doppi servizi. Termoautonomo
AFFARI ALL'ASTA è uno studio di consulenza che si occupa di aste immobiliari e saldo stralcio, dove il cliente viene seguito in tutto il percorso relativo all' acquisto tramite aste giudiziarie.
L' immobile viene venduto dal tribunale ed il prezzo indicato si riferisce all' offerta minima.
Contattaci per fissare un appuntamento per avere maggiori informazioni.
Per maggiori informazioni:
MILANO, VIA GIUSEPPE TARTINI, 12 (MI)
+39 3392588984
+39 3427176507

Per maggiori informazioni:
MILANO, VIA GIUSEPPE TARTINI, 12 (MI)
+39 3392588984
+39 3427176507
Caratteristiche principali
Codice
SOT29
Città
Monza
Categoria
4 o più locali
Prezzo
240.000 €
Locali
4
Mq
118
Box
2
Piano
Terra
Classe energetica
G
Stato Immobile
Buono
Grado
Medio
Posizione
Centro
Panorama
Vista Aperta
Orientamento
Nord Ovest Sud Est
Giardino
Cortile
Arredi
Semi Arredato
Tipo Soggiorno
Doppio
Tipo Cucina
A Vista
Riscaldamento
Autonomo
Tipo Riscaldam.
Caldaia
Tipo Impianto
Radiatori
Fonte Energetica
Metano
Infissi
Legno Doppio Vetro
Serramenti
Buono
Persiana
Tapparella PVC
Pavim. Giorno
Ceramica
Pavim. Notte
Parquet
Pavim. Cucina
Ceramica
Pavim. Bagno
Ceramica

Accessori: Ascensore, Porta Blindata, Video Citofono

Mappa
Via Spluga 15, Monza (MB)
Condividi su
Cookie preference