Italiano
321.000 €

QUADRILOCALE ALL'ASTA

4 o più locali in vendita • Milano (Baggio/ Forze Armate/ Quinto Romano) - Via Simone Saint Bon, 2
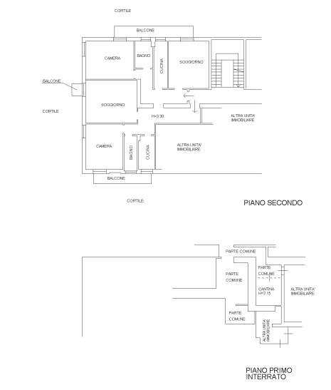
appartamento ad uso abitazione, posto al piano secondo (servito da ascensore), composto da quattro locali, due bagni, ampia cucina e due balconi, oltre cantina al piano interrato
appartamento ad uso abitazione, posto al piano secondo (servito da ascensore), composto da quattro locali, due bagni, ampia cucina e due balconi, oltre cantina al piano interrato
AFFARI ALL'ASTA è uno studio di consulenza che si occupa di aste immobiliari e saldo stralcio, dove il cliente viene seguito in tutto il percorso relativo all' acquisto tramite aste giudiziarie.
L' immobile viene venduto dal tribunale ed il prezzo indicato si riferisce all' offerta minima.
Contattaci per fissare un appuntamento per avere maggiori informazioni.
Per maggiori informazioni:
MILANO, VIA GIUSEPPE TARTINI, 12 (MI)
+39 3392588984
+39 3427176507

Per maggiori informazioni:
MILANO, VIA GIUSEPPE TARTINI, 12 (MI)
+39 3392588984
+39 3427176507
Caratteristiche principali
Codice
SOT255
Città
Milano (Baggio/ Forze Armate/ Quinto Romano)
Categoria
4 o più locali
Prezzo
321.000 €
Locali
4
Mq
146
Piano
2
Classe energetica
G
Stato Immobile
Buono
Grado
Medio
Posizione
Periferia
Panorama
Vista Aperta
Orientamento
Nord Ovest Sud Est
Giardino
Cortile
Arredi
Semi Arredato
Tipo Soggiorno
Sala da Pranzo
Tipo Cucina
A Vista
Riscaldamento
Centralizzato
Tipo Riscaldam.
Caldaia
Tipo Impianto
Radiatori
Fonte Energetica
Metano
Infissi
Legno
Serramenti
Buono
Persiana
Tapparella PVC
Pavim. Giorno
Graniglia
Pavim. Notte
Graniglia
Pavim. Cucina
Graniglia
Pavim. Bagno
Graniglia

Accessori: Ascensore, Portineria/Custode

Mappa
Via Simone Saint Bon 2, Milano (MI)
Condividi su
Cookie preference