Italiano
97.928 €

NEGOZIO ALL'ASTA

Negozio in vendita • Parabiago - Piazza giuseppe maggiolini, 29
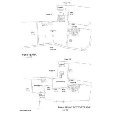
NEGOZIO SITO IN PARABIAGO, PIAZZA GIUSEPPE MAGGIOLINI 29, POSTO AL PIANO TERRA COMPOSTO DA UN LOCALE CON SERVIZI E LOCALE DEPOSITO/MAGAZZINO AL PIANO INTERRATO, DELLA SUPERFICIE COMMERCIALE DI 189 MQ
NEGOZIO SITO IN PARABIAGO, PIAZZA GIUSEPPE MAGGIOLINI 29, POSTO AL PIANO TERRA COMPOSTO DA UN LOCALE CON SERVIZI E LOCALE DEPOSITO/MAGAZZINO AL PIANO INTERRATO, DELLA SUPERFICIE COMMERCIALE DI 189 MQ
AFFARI ALL'ASTA è uno studio di consulenza che si occupa di aste immobiliari e saldo stralcio, dove il cliente viene seguito in tutto il percorso relativo all' acquisto tramite aste giudiziarie.
L' immobile viene venduto dal tribunale ed il prezzo indicato si riferisce all' offerta minima.
Contattaci per fissare un appuntamento per avere maggiori informazioni.
Per maggiori informazioni:
MILANO, VIA GIUSEPPE TARTINI, 12 (MI)
+39 3392588984
+39 3427176507

Per maggiori informazioni:
MILANO, VIA GIUSEPPE TARTINI, 12 (MI)
+39 3392588984
+39 3427176507
Caratteristiche principali
Codice
SOT246
Città
Parabiago
Categoria
Negozio
Prezzo
97.928 €
Locali
1
Bagni
1
Mq
189
Piano
Terra
Classe energetica
G
Stato Immobile
Buono
Grado
Medio
Posizione
Centro Storico
Panorama
Vista Aperta
Orientamento
Nord Ovest Sud Est
Arredi
Non Arredato
Riscaldamento
Centralizzato
Tipo Riscaldam.
Caldaia
Tipo Impianto
Radiatori
Fonte Energetica
Metano
Infissi
Alluminio
Serramenti
Buono
Pavimento
Ceramica
Numero Vetrine
Due

Accessori: Aria Condizionata, Porta Blindata

Mappa
Piazza giuseppe maggiolini 29, Parabiago (MI)
Condividi su
Cookie preference