Italiano
66.675 €

BILOCALE ALL'ASTA

2 locali in vendita • Pavia - Strada Case Nuove Canonici, 501
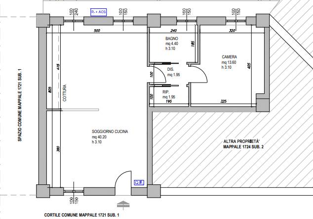
unità immobiliare ad uso abitativo al piano terra parte di un più ampio complesso immobiliare di unità residenziali con affaccio sulla corte comune, dotata di giardino di proprietà esclusiva e posto auto pertinenziale.
unità immobiliare ad uso abitativo al piano terra parte di un più ampio complesso immobiliare di unità residenziali con affaccio sulla corte comune, dotata di giardino di proprietà esclusiva e posto auto pertinenziale.
AFFARI ALL'ASTA è uno studio di consulenza che si occupa di aste immobiliari e saldo stralcio, dove il cliente viene seguito in tutto il percorso relativo all' acquisto tramite aste giudiziarie.
L' immobile viene venduto dal tribunale ed il prezzo indicato si riferisce all' offerta minima.
Contattaci per fissare un appuntamento per avere maggiori informazioni.
Per maggiori informazioni:
MILANO, VIA GIUSEPPE TARTINI, 12 (MI)
+39 3392588984
+39 3427176507

Per maggiori informazioni:
MILANO, VIA GIUSEPPE TARTINI, 12 (MI)
+39 3392588984
+39 3427176507
Caratteristiche principali
Codice
SOT238
Città
Pavia
Categoria
2 locali
Prezzo
66.675 €
Locali
2
Mq
93
Posti auto
1
Piano
Terra
Classe energetica
G
Stato Immobile
Buono
Grado
Medio
Posizione
Periferia
Panorama
Vista Aperta
Orientamento
Nord Ovest Sud Est
Giardino
Privato
Arredi
Semi Arredato
Tipo Soggiorno
Sala da Pranzo
Tipo Cucina
A Vista
Riscaldamento
Autonomo
Tipo Riscaldam.
Caldaia
Tipo Impianto
Radiatori
Fonte Energetica
Metano
Infissi
Legno Doppio Vetro
Serramenti
Buono
Persiana
Persiana Legno
Pavim. Giorno
Ceramica
Pavim. Notte
Ceramica
Pavim. Cucina
Ceramica
Pavim. Bagno
Ceramica

Accessori: Aria Condizionata, Porta Blindata, Ripostiglio, Zanzariere

Mappa
Strada Case Nuove Canonici 501, Pavia (PV)
Condividi su
Cookie preference