Italiano
99.000 €

UFFICIO ALL'ASTA

Ufficio in vendita • Concorezzo - Via Cascina Meda , 2/4
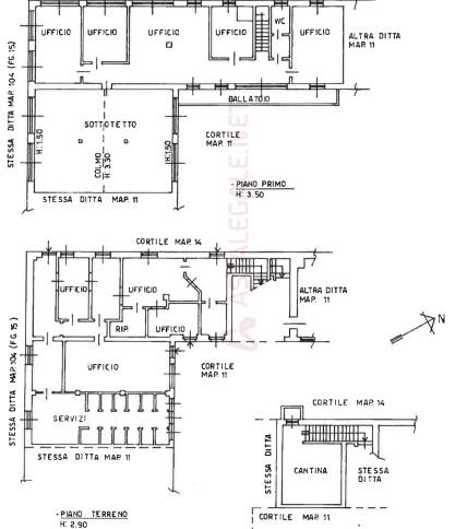
ufficio della superficie commerciale di mq. 614,15, composto da due corpi collegati tra di loro, uno lato ovest e uno lato sud, costituito da un piano interrato e da due piani fuori terra. Composto da nove locali con servizi e locale caldaia al piano interrato
ufficio della superficie commerciale di mq. 614,15, composto da due corpi collegati tra di loro, uno lato ovest e uno lato sud, costituito da un piano interrato e da due piani fuori terra. Composto da nove locali con servizi e locale caldaia al piano interrato
AFFARI ALL'ASTA è uno studio di consulenza che si occupa di aste immobiliari e saldo stralcio, dove il cliente viene seguito in tutto il percorso relativo all' acquisto tramite aste giudiziarie.
L' immobile viene venduto dal tribunale ed il prezzo indicato si riferisce all' offerta minima.
Contattaci per fissare un appuntamento per avere maggiori informazioni.
Per maggiori informazioni:
MILANO, VIA GIUSEPPE TARTINI, 12 (MI)
+39 3392588984
+39 3427176507

Per maggiori informazioni:
MILANO, VIA GIUSEPPE TARTINI, 12 (MI)
+39 3392588984
+39 3427176507
Caratteristiche principali
Codice
SOT23
Città
Concorezzo
Categoria
Ufficio
Prezzo
99.000 €
Locali
9
Mq
614
Piano
Terra
Classe energetica
G
Stato Immobile
Buono
Grado
Medio
Posizione
Periferia
Panorama
Vista Aperta
Orientamento
Nord Ovest Sud Est
Arredi
Semi Arredato
Riscaldamento
Autonomo
Tipo Riscaldam.
Caldaia
Tipo Impianto
Radiatori
Fonte Energetica
Metano
Infissi
Legno
Serramenti
Buono
Persiana
Persiana Legno
Pavim. Bagno
Ceramica
Pavimento
Ceramica
Mappa
Via Cascina Meda 2/4, Concorezzo (MB)
Condividi su
Cookie preference