Italiano
17.569 €

TRILOCALE ALL'ASTA

3 locali in vendita • Montegrino Valtravaglia - Via Scalata , 3
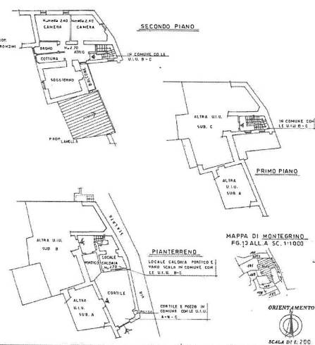
appartamento in piano secondo composto da atrio, soggiorno con balcone, vano cottura, due camere e servizio, con annessi a piano terra, cortile, pozzo, locale caldaia e portico oltre a scala comune dal piano terra al piano secondo
appartamento in piano secondo composto da atrio, soggiorno con balcone, vano cottura, due camere e servizio, con annessi a piano terra, cortile, pozzo, locale caldaia e portico oltre a scala comune dal piano terra al piano secondo
AFFARI ALL'ASTA è uno studio di consulenza che si occupa di aste immobiliari e saldo stralcio, dove il cliente viene seguito in tutto il percorso relativo all' acquisto tramite aste giudiziarie.
L' immobile viene venduto dal tribunale ed il prezzo indicato si riferisce all' offerta minima.
Contattaci per fissare un appuntamento per avere maggiori informazioni.
Per maggiori informazioni:
MILANO, VIA GIUSEPPE TARTINI, 12 (MI)
+39 3392588984
+39 3427176507

Per maggiori informazioni:
MILANO, VIA GIUSEPPE TARTINI, 12 (MI)
+39 3392588984
+39 3427176507
Caratteristiche principali
Codice
SOT224
Città
Montegrino Valtravaglia
Categoria
3 locali
Prezzo
17.569 €
Locali
3
Mq
103
Piano
2
Classe energetica
G
Stato Immobile
Buono
Grado
Medio
Posizione
Centro
Panorama
Vista Aperta
Orientamento
Nord Ovest Sud Est
Giardino
Cortile
Arredi
Semi Arredato
Tipo Soggiorno
Sala da Pranzo
Tipo Cucina
A Vista
Riscaldamento
Autonomo
Tipo Impianto
Altro
Fonte Energetica
Legna
Infissi
Legno
Serramenti
Buono
Persiana
Persiana Legno
Pavim. Giorno
Ceramica
Pavim. Notte
Ceramica
Pavim. Cucina
Ceramica
Pavim. Bagno
Ceramica
Mappa
Via Scalata 3, Montegrino Valtravaglia (VA)
Condividi su
Cookie preference