Italiano
84.000 €

ABITAZIONE INDIPENDENTE ALL'ASTA

4 o più locali in vendita • Fagnano Olona - Via l. cadorna, 61
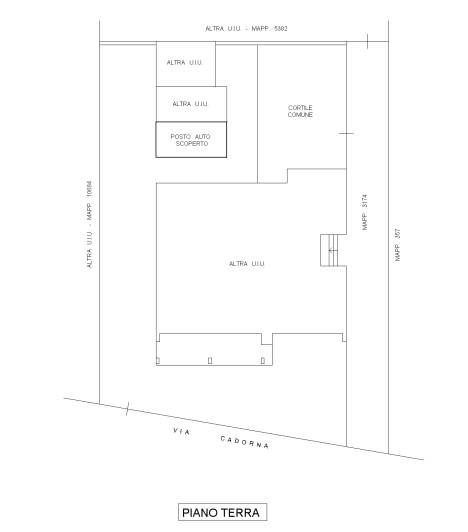
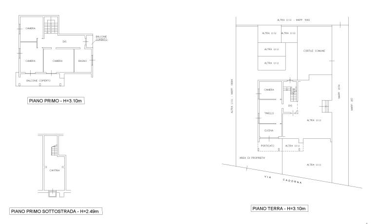
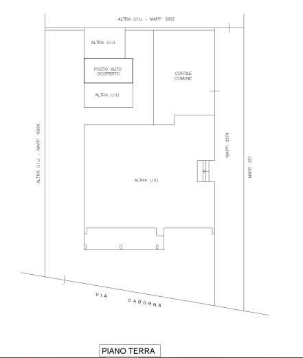
Porzione di abitazione indipendente composta da cantina al piano interrato, tre locali al piano terra, tre locali più servizi e porticato al primo piano con scala interna oltre a terreno di proprietà esclusiva, oltre a due posti auto.
Porzione di abitazione indipendente composta da cantina al piano interrato, tre locali al piano terra, tre locali più servizi e porticato al primo piano con scala interna oltre a terreno di proprietà esclusiva, oltre a due posti auto.
AFFARI ALL'ASTA è uno studio di consulenza che si occupa di aste immobiliari e saldo stralcio, dove il cliente viene seguito in tutto il percorso relativo all' acquisto tramite aste giudiziarie.
L' immobile viene venduto dal tribunale ed il prezzo indicato si riferisce all' offerta minima.
Contattaci per fissare un appuntamento per avere maggiori informazioni.
Per maggiori informazioni:
MILANO, VIA GIUSEPPE TARTINI, 12 (MI)
+39 3392588984
+39 3427176507

Per maggiori informazioni:
MILANO, VIA GIUSEPPE TARTINI, 12 (MI)
+39 3392588984
+39 3427176507
Caratteristiche principali
Codice
SOT212
Città
Fagnano Olona
Categoria
4 o più locali
Prezzo
84.000 €
Locali
5
Mq
230
Box
2
Piano
Terra
Classe energetica
G
Stato Immobile
Buono
Grado
Medio
Posizione
Periferia
Panorama
Vista Aperta
Orientamento
Nord Ovest Sud Est
Giardino
Cortile
Arredi
Semi Arredato
Tipo Soggiorno
Sala da Pranzo
Tipo Cucina
A Vista
Riscaldamento
Autonomo
Tipo Riscaldam.
Caldaia
Tipo Impianto
Radiatori
Fonte Energetica
Metano
Infissi
Legno
Serramenti
Buono
Persiana
Tapparella PVC
Pavim. Giorno
Ceramica
Pavim. Notte
Ceramica
Pavim. Cucina
Ceramica
Pavim. Bagno
Ceramica
Mappa
Via l. cadorna 61, Fagnano Olona (VA)
Condividi su
Cookie preference