Italiano
50.250 €

QUADRILOCALE ALL'ASTA

4 o più locali in vendita • Broni - Via Parini, 19
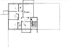
appartamento in fabbricato di corte oltre ad accessori, cantina e autorimessa cos' composto: al piano primo, ingresso tramite porta blindata in legno, disimpegno d’ingresso, cucina dotata di finestra con affaccio a est, locale giorno dotato di due finestre con affaccio a est, disimpegno cieco, camera matrimoniale e due bagni dotati ciascuno di una finestra affacciata verso il ballatoio esposto a nord, camera singola dotata di porta-finestra con affaccio sul ballatoio esposto a nord, camera singola dotata di finestra esposta a sud, ripostiglio cieco. Cantina, al piano terra. Autorimessa al piano terra.
AFFARI ALL'ASTA è uno studio di consulenza che si occupa di aste immobiliari e saldo stralcio, dove il cliente viene seguito in tutto il percorso relativo all' acquisto tramite aste giudiziarie.
L' immobile viene venduto dal tribunale ed il prezzo indicato si riferisce all' offerta minima.
Contattaci per fissare un appuntamento per avere maggiori informazioni.
Per maggiori informazioni:
MILANO, VIA GIUSEPPE TARTINI, 12 (MI)
+39 3392588984
+39 3427176507

Per maggiori informazioni:
MILANO, VIA GIUSEPPE TARTINI, 12 (MI)
+39 3392588984
+39 3427176507
Caratteristiche principali
Codice
SOT201
Città
Broni
Categoria
4 o più locali
Prezzo
50.250 €
Locali
4
Mq
153
Box
1
Piano
1
Classe energetica
G
Stato Immobile
Buono
Grado
Medio
Posizione
Periferia
Panorama
Vista Aperta
Orientamento
Nord Ovest Sud Est
Giardino
Cortile
Arredi
Semi Arredato
Tipo Soggiorno
Sala da Pranzo
Tipo Cucina
A Vista
Riscaldamento
Autonomo
Tipo Riscaldam.
Caldaia
Tipo Impianto
Radiatori
Fonte Energetica
Metano
Infissi
Legno
Serramenti
Buono
Persiana
Persiana Legno
Pavim. Giorno
Ceramica
Pavim. Notte
Ceramica
Pavim. Cucina
Ceramica
Pavim. Bagno
Ceramica

Accessori: Porta Blindata, Ripostiglio

Mappa
Via Parini 19, Broni (PV)
Condividi su
Cookie preference