Italiano
198.000 €

CASA INDIPENDENTE ALL'ASTA

3 locali in vendita • Claino con Osteno - Via per Porlezza , 75
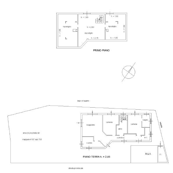
fabbricato adibito a civile abitazione disposto su due livelli, collegati tra loro da scala interna, con annessa area pertinenziale adibita a giardino, della superficie commerciale di 144 mq
fabbricato adibito a civile abitazione disposto su due livelli, collegati tra loro da scala interna, con annessa area pertinenziale adibita a giardino, della superficie commerciale di 144 mq
AFFARI ALL'ASTA è uno studio di consulenza che si occupa di aste immobiliari e saldo stralcio, dove il cliente viene seguito in tutto il percorso relativo all' acquisto tramite aste giudiziarie.
L' immobile viene venduto dal tribunale ed il prezzo indicato si riferisce all' offerta minima.
Contattaci per fissare un appuntamento per avere maggiori informazioni.
Per maggiori informazioni:
MILANO, VIA GIUSEPPE TARTINI, 12 (MI)
+39 3392588984
+39 3427176507

Per maggiori informazioni:
MILANO, VIA GIUSEPPE TARTINI, 12 (MI)
+39 3392588984
+39 3427176507
Caratteristiche principali
Codice
SOT195
Città
Claino con Osteno
Categoria
3 locali
Prezzo
198.000 €
Locali
3
Mq
144
Box
1
Piano
Terra
Classe energetica
G
Stato Immobile
Buono
Grado
Medio
Posizione
Periferia
Panorama
Vista Aperta
Orientamento
Nord Ovest Sud Est
Giardino
Privato
Arredi
Semi Arredato
Tipo Soggiorno
Sala da Pranzo
Tipo Cucina
A Vista
Riscaldamento
Autonomo
Tipo Riscaldam.
Caldaia
Tipo Impianto
Radiatori
Fonte Energetica
Metano
Infissi
Alluminio
Serramenti
Buono
Persiana
Tapparella PVC
Pavim. Giorno
Ceramica
Pavim. Notte
Ceramica
Pavim. Cucina
Ceramica
Pavim. Bagno
Ceramica

Accessori:

Mappa
Via per Porlezza 75, Claino con Osteno (CO)
Condividi su
Cookie preference