Italiano
115.875 €

BILOCALE ALL'ASTA

2 locali in vendita • San Giuliano Milanese - Via Cavour, 44
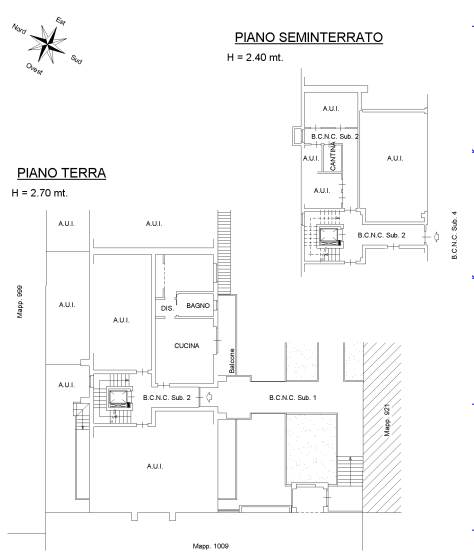
appartamento composto da cucina con angolo cottura, disimpegno, una camera, bagno, balcone, locale cantina al piano interrato e box ad uso autorimessa pertinenziale all'appartamento. Della superficie commerciale di 57 mq
appartamento composto da cucina con angolo cottura, disimpegno, una camera, bagno, balcone, locale cantina al piano interrato e box ad uso autorimessa pertinenziale all'appartamento. Della superficie commerciale di 57 mq
AFFARI ALL'ASTA è uno studio di consulenza che si occupa di aste immobiliari e saldo stralcio, dove il cliente viene seguito in tutto il percorso relativo all' acquisto tramite aste giudiziarie.
L' immobile viene venduto dal tribunale ed il prezzo indicato si riferisce all' offerta minima.
Contattaci per fissare un appuntamento per avere maggiori informazioni.
Per maggiori informazioni:
MILANO, VIA GIUSEPPE TARTINI, 12 (MI)
+39 3392588984
+39 3427176507

Per maggiori informazioni:
MILANO, VIA GIUSEPPE TARTINI, 12 (MI)
+39 3392588984
+39 3427176507
Caratteristiche principali
Codice
SOT172
Città
San Giuliano Milanese
Categoria
2 locali
Prezzo
115.875 €
Locali
2
Bagni
1
Mq
57
Box
1
Piano
Terra
Classe energetica
G
Stato Immobile
Buono
Grado
Medio
Posizione
Periferia
Panorama
Vista Aperta
Orientamento
Nord Ovest Sud Est
Giardino
Cortile
Arredi
Semi Arredato
Tipo Soggiorno
Sala da Pranzo
Tipo Cucina
A Vista
Riscaldamento
Centralizzato
Tipo Riscaldam.
Caldaia
Tipo Impianto
Pavimento
Fonte Energetica
Metano
Infissi
Legno
Serramenti
Buono
Persiana
Tapparella PVC
Pavim. Giorno
Ceramica
Pavim. Notte
Ceramica
Pavim. Cucina
Ceramica
Pavim. Bagno
Ceramica

Accessori: Porta Blindata

Mappa
Via Cavour 44, San Giuliano Milanese (MI)
Condividi su
Cookie preference