Italiano
2.250.000 €

SEI LOCALI ALL'ASTA

4 o più locali in vendita • Milano (P.ta Genova/ Romolo/ Solari) - Via giosuè carducci, 31
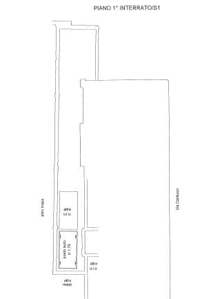
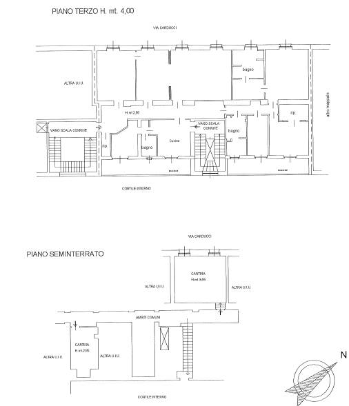
appartamento al piano terzo di sei locali oltre servizi e accessori con annessi, due balconi e due vani di cantina al piano seminterrato, il tutto di mq.252,40 commerciali e n.3 posti auto meccanizzati di mq. 14 commerciali ciascuno pertinenziali all’appartamento, posti al piano primo interrato.
appartamento al piano terzo di sei locali oltre servizi e accessori con annessi, due balconi e due vani di cantina al piano seminterrato, il tutto di mq.252,40 commerciali e n.3 posti auto meccanizzati di mq. 14 commerciali ciascuno pertinenziali all’appartamento, posti al piano primo interrato.
AFFARI ALL'ASTA è uno studio di consulenza che si occupa di aste immobiliari e saldo stralcio, dove il cliente viene seguito in tutto il percorso relativo all' acquisto tramite aste giudiziarie.
L' immobile viene venduto dal tribunale ed il prezzo indicato si riferisce all' offerta minima.
Contattaci per fissare un appuntamento per avere maggiori informazioni.
Per maggiori informazioni:
MILANO, VIA GIUSEPPE TARTINI, 12 (MI)
+39 3392588984
+39 3427176507

Per maggiori informazioni:
MILANO, VIA GIUSEPPE TARTINI, 12 (MI)
+39 3392588984
+39 3427176507
Caratteristiche principali
Codice
SOT15
Città
Milano (P.ta Genova/ Romolo/ Solari)
Categoria
4 o più locali
Prezzo
2.250.000 €
Locali
6
Mq
252
Posti auto
3
Piano
3
Classe energetica
G
Stato Immobile
Buono
Grado
Medio
Posizione
Periferia
Panorama
Vista Aperta
Orientamento
Nord Ovest Sud Est
Giardino
Cortile
Arredi
Semi Arredato
Tipo Soggiorno
Doppio
Tipo Cucina
A Vista
Riscaldamento
Autonomo
Tipo Riscaldam.
Caldaia
Tipo Impianto
Radiatori
Fonte Energetica
Metano
Infissi
Alluminio
Serramenti
Buono
Persiana
Persiana Metallo
Pavim. Giorno
Gres Porcellanato
Pavim. Notte
Gres Porcellanato
Pavim. Cucina
Gres Porcellanato
Pavim. Bagno
Gres Porcellanato

Accessori: Aria Condizionata, Ascensore, Porta Blindata, Portineria/Custode

Mappa
Via giosuè carducci 31, Milano (MI)
Condividi su
Cookie preference