Italiano
85.800 €

CINQUE LOCALI ALL'ASTA

4 o più locali in vendita • Brissago Valtravaglia - Via Bernardino Luini , 18
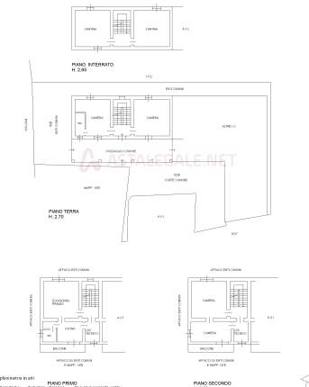
porzione di fabbricato abitativo, disposta sui piani terreno, primo, secondo e sottotetto oltre ad un piano interrato, collegati tra loro da scala interna, composta da due vani ad uso cantina al piano interrato, due locali al piano terra, cucina, soggiorno e bagno al piano primo e due camere al piano secondo, della superficie commerciale di 228 mq
AFFARI ALL'ASTA è uno studio di consulenza che si occupa di aste immobiliari e saldo stralcio, dove il cliente viene seguito in tutto il percorso relativo all' acquisto tramite aste giudiziarie.
L' immobile viene venduto dal tribunale ed il prezzo indicato si riferisce all' offerta minima.
Contattaci per fissare un appuntamento per avere maggiori informazioni.
Per maggiori informazioni:
MILANO, VIA GIUSEPPE TARTINI, 12 (MI)
+39 3392588984
+39 3427176507

Per maggiori informazioni:
MILANO, VIA GIUSEPPE TARTINI, 12 (MI)
+39 3392588984
+39 3427176507

Caratteristiche principali
Codice
SOT135
Città
Brissago Valtravaglia
Categoria
4 o più locali
Prezzo
85.800 €
Locali
5
Bagni
1
Mq
228
Piano
Terra
Classe energetica
G
Stato Immobile
Buono
Grado
Medio
Posizione
Periferia
Panorama
Vista Aperta
Orientamento
Nord Ovest Sud Est
Giardino
Cortile
Arredi
Semi Arredato
Tipo Soggiorno
Sala da Pranzo
Tipo Cucina
A Vista
Riscaldamento
Autonomo
Tipo Riscaldam.
Caldaia
Tipo Impianto
Radiatori
Fonte Energetica
Metano
Infissi
Legno
Serramenti
Buono
Persiana
Tapparella PVC
Pavim. Giorno
Ceramica
Pavim. Notte
Ceramica
Pavim. Cucina
Ceramica
Pavim. Bagno
Ceramica
Mappa
Via Bernardino Luini 18, Brissago Valtravaglia (VA)
Condividi su
Cookie preference