Italiano
116.250 €

TRILOCALE ALL'ASTA

3 locali in vendita • Agrate Conturbia - Via g. marconi, 37
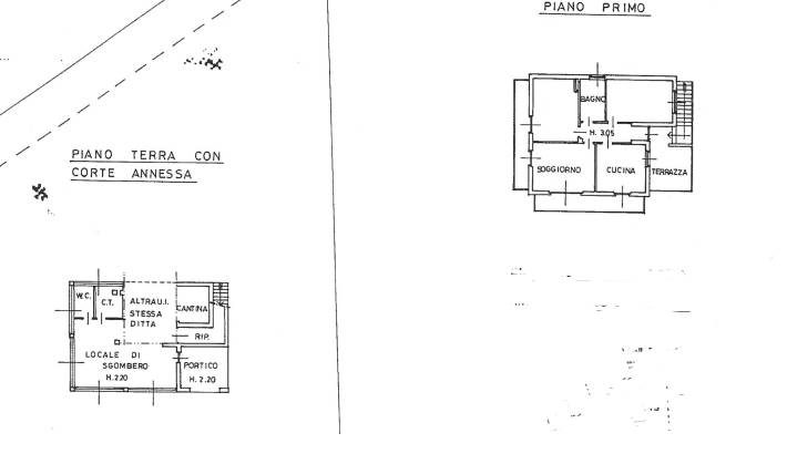
AGRATE CONTURBIA: Via Marconi n. 37, per la piena proprietà: edificio residenziale unifamiliare indipendente insistente su un'area di mq. 2.220 di compendio destinata a verde e, per una porzione posta a nord, costituente strada vicinale ed è costituto da: -appartamento così composto: al pt ampio locale ad uso cantina, ripostiglio, locale sgombero, bagno, centrale termica e porticato esterno; al p1 cucina, soggiorno, disimpegno, due camere, bagno, terrazzo e 2 balconi; -autorimessa al pt.
AFFARI ALL'ASTA è uno studio di consulenza che si occupa di aste immobiliari e saldo stralcio, dove il cliente viene seguito in tutto il percorso relativo all' acquisto tramite aste giudiziarie.
L' immobile viene venduto dal tribunale ed il prezzo indicato si riferisce all' offerta minima.
Contattaci per fissare un appuntamento per avere maggiori informazioni.
Per maggiori informazioni:
MILANO, VIA GIUSEPPE TARTINI, 12 (MI)
+39 3392588984
+39 3427176507

Per maggiori informazioni:
MILANO, VIA GIUSEPPE TARTINI, 12 (MI)
+39 3392588984
+39 3427176507
Caratteristiche principali
Codice
SOT13
Città
Agrate Conturbia
Categoria
3 locali
Prezzo
116.250 €
Locali
3
Bagni
1
Mq
164
Box
1
Piano
Terra
Classe energetica
G
Stato Immobile
Buono
Grado
Medio
Posizione
Periferia
Panorama
Vista Aperta
Orientamento
Nord Ovest Sud Est
Giardino
Privato
Arredi
Semi Arredato
Tipo Soggiorno
Sala da Pranzo
Tipo Cucina
A Vista
Riscaldamento
Autonomo
Tipo Riscaldam.
Caldaia
Tipo Impianto
Radiatori
Fonte Energetica
Metano
Infissi
Legno
Serramenti
Buono
Persiana
Tapparella PVC
Pavim. Giorno
Ceramica
Pavim. Notte
Ceramica
Pavim. Cucina
Ceramica
Pavim. Bagno
Ceramica
Mappa
Via g. marconi 37, Agrate Conturbia (NO)
Condividi su
Cookie preference