Italiano
743.250 €

QUADRILOCALE ALL'ASTA

4 o più locali in vendita • Milano (V Giornate/ XXII Marzo/ Porta Romana) - V.le beatrice d'este, 7
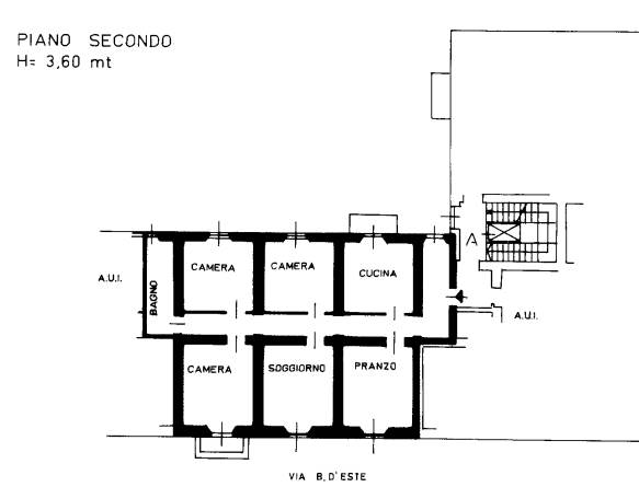
piano secondo composto da ingresso, ampio locale soggiorno/sala da pranzo, disimpegno, locale cucina, servizio comunicante con altro servizio/lavanderia, a sua volta comunicante con spazio guardaroba e locale camera padronale, altro locale camera e due balconi al piano
piano secondo composto da ingresso, ampio locale soggiorno/sala da pranzo, disimpegno, locale cucina, servizio comunicante con altro servizio/lavanderia, a sua volta comunicante con spazio guardaroba e locale camera padronale, altro locale camera e due balconi al piano
AFFARI ALL'ASTA è uno studio di consulenza che si occupa di aste immobiliari e saldo stralcio, dove il cliente viene seguito in tutto il percorso relativo all' acquisto tramite aste giudiziarie.
L' immobile viene venduto dal tribunale ed il prezzo indicato si riferisce all' offerta minima.
Contattaci per fissare un appuntamento per avere maggiori informazioni.
Per maggiori informazioni:
MILANO, VIA GIUSEPPE TARTINI, 12 (MI)
+39 3392588984
+39 3427176507

Per maggiori informazioni:
MILANO, VIA GIUSEPPE TARTINI, 12 (MI)
+39 3392588984
+39 3427176507
Caratteristiche principali
Codice
SOT12
Città
Milano (V Giornate/ XXII Marzo/ Porta Romana)
Categoria
4 o più locali
Prezzo
743.250 €
Locali
4
Mq
164
Piano
2
Classe energetica
G
Stato Immobile
Buono
Grado
Medio
Posizione
Centro
Panorama
Vista Aperta
Orientamento
Nord Ovest Sud Est
Giardino
Cortile
Arredi
Semi Arredato
Tipo Soggiorno
Sala da Pranzo
Tipo Cucina
A Vista
Riscaldamento
Autonomo
Tipo Riscaldam.
Caldaia
Tipo Impianto
Radiatori
Fonte Energetica
Metano
Infissi
Legno
Serramenti
Buono
Persiana
Tapparella PVC
Pavim. Giorno
Parquet
Pavim. Notte
Parquet
Pavim. Cucina
Parquet
Pavim. Bagno
Ceramica
Mappa
V.le beatrice d'este 7, Milano (MI)
Condividi su
Cookie preference