Italiano
95.625 €

QUADRILOCALE ALL'ASTA

4 o più locali in vendita • Vigevano - Piazza Vittorio Veneto, 5
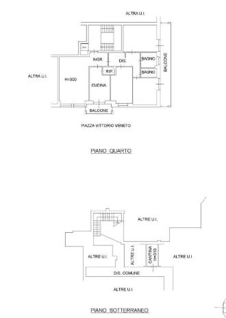
appartamento, posto al quarto piano, con annessa cantina interrata, composto da quattro locali con doppi servizi, della superficie commerciale di 124 mq, dotato di ascensore, aria condizionata e riscaldamento centralizzato
appartamento, posto al quarto piano, con annessa cantina interrata, composto da quattro locali con doppi servizi, della superficie commerciale di 124 mq, dotato di ascensore, aria condizionata e riscaldamento centralizzato
AFFARI ALL'ASTA è uno studio di consulenza che si occupa di aste immobiliari e saldo stralcio, dove il cliente viene seguito in tutto il percorso relativo all' acquisto tramite aste giudiziarie.
L' immobile viene venduto dal tribunale ed il prezzo indicato si riferisce all' offerta minima.
Contattaci per fissare un appuntamento per avere maggiori informazioni.
Per maggiori informazioni:
MILANO, VIA GIUSEPPE TARTINI, 12 (MI)
+39 3392588984
+39 3427176507

Per maggiori informazioni:
MILANO, VIA GIUSEPPE TARTINI, 12 (MI)
+39 3392588984
+39 3427176507
Caratteristiche principali
Codice
SOT110
Città
Vigevano
Categoria
4 o più locali
Prezzo
95.625 €
Locali
4
Mq
124
Piano
Terra
Classe energetica
G
Stato Immobile
Buono
Grado
Medio
Posizione
Periferia
Panorama
Vista Aperta
Orientamento
Nord Ovest Sud Est
Giardino
Cortile
Arredi
Semi Arredato
Tipo Soggiorno
Sala da Pranzo
Tipo Cucina
A Vista
Riscaldamento
Centralizzato
Tipo Riscaldam.
Caldaia
Tipo Impianto
Radiatori
Fonte Energetica
Gas
Infissi
Legno
Serramenti
Buono
Persiana
Tapparella PVC
Pavim. Giorno
Parquet
Pavim. Notte
Parquet
Pavim. Cucina
Ceramica
Pavim. Bagno
Ceramica

Accessori: Aria Condizionata, Ascensore

Mappa
Piazza Vittorio Veneto 5, Vigevano (PV)
Condividi su
Cookie preference