Italiano
29.242 €

BILOCALE ALL'ASTA

2 locali in vendita • Calvignasco - Via cesare battisti , 7
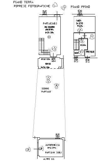
1) Abitazione tipo popolare
Piano terra: vano adibito a soggiorno con angolo cottura, servito da scala interna di collegamento al piano primo; è inoltre presente un portico così come il sedime esclusivo retrostante;
Piano primo: disimpegno dal quale si accede a una camera da letto, a un ripostiglio e a un servizio igienico.
2) Autorimessa
AFFARI ALL'ASTA è uno studio di consulenza che si occupa di aste immobiliari e saldo stralcio, dove il cliente viene seguito in tutto il percorso relativo all' acquisto tramite aste giudiziarie.
L' immobile viene venduto dal tribunale ed il prezzo indicato si riferisce all' offerta minima.
Contattaci per fissare un appuntamento per avere maggiori informazioni.
Per maggiori informazioni:
MILANO, VIA GIUSEPPE TARTINI, 12 (MI)
+39 3392588984
+39 3427176507

Per maggiori informazioni:
MILANO, VIA GIUSEPPE TARTINI, 12 (MI)
+39 3392588984
+39 3427176507
Caratteristiche principali
Codice
SOT1
Città
Calvignasco
Categoria
2 locali
Prezzo
29.242 €
Locali
2
Mq
87
Box
1
Piano
Terra
Classe energetica
G
Stato Immobile
Buono
Grado
Medio
Posizione
Centro
Panorama
Vista Aperta
Orientamento
Nord Ovest Sud Est
Giardino
Cortile
Arredi
Semi Arredato
Tipo Soggiorno
Sala da Pranzo
Tipo Cucina
A Vista
Riscaldamento
Autonomo
Tipo Riscaldam.
Caldaia
Tipo Impianto
Radiatori
Fonte Energetica
Metano
Infissi
Legno
Serramenti
Buono
Persiana
Persiana Legno
Pavim. Giorno
Ceramica
Pavim. Notte
Ceramica
Pavim. Cucina
Ceramica
Pavim. Bagno
Ceramica
Mappa
Via cesare battisti 7, Calvignasco (MI)
Condividi su
Cookie preference