Italiano
17.250 €

NEGOZIO ALL'ASTA

Negozio in vendita • Busto Arsizio - viale giotto, 11
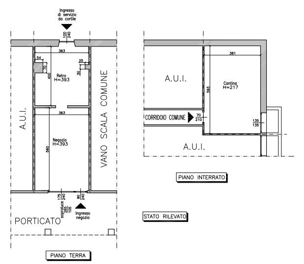
negozio posto al piano terra con annesso vano di cantina al piano sotterraneo della superficie commerciale di mq 44,45 - libero, dotato di riscaldamento centralizzato.
negozio posto al piano terra con annesso vano di cantina al piano sotterraneo della superficie commerciale di mq 44,45 - libero, dotato di riscaldamento centralizzato.
AFFARI ALL'ASTA è uno studio di consulenza che si occupa di aste immobiliari e saldo stralcio, dove il cliente viene seguito in tutto il percorso relativo all' acquisto tramite aste giudiziarie.
L' immobile viene venduto dal tribunale ed il prezzo indicato si riferisce all' offerta minima.
Contattaci per fissare un appuntamento per avere maggiori informazioni.
Per maggiori informazioni:
MILANO, VIA GIUSEPPE TARTINI, 12 (MI)
+39 3392588984
+39 3427176507

Per maggiori informazioni:
MILANO, VIA GIUSEPPE TARTINI, 12 (MI)
+39 3392588984
+39 3427176507
Caratteristiche principali
Codice
SNO83
Città
Busto Arsizio
Categoria
Negozio
Prezzo
17.250 €
Locali
1
Mq
44
Piano
Terra
Classe energetica
G
Stato Immobile
Buono
Grado
Medio
Posizione
Periferia
Panorama
Vista Aperta
Orientamento
Nord Ovest Sud Est
Arredi
Semi Arredato
Riscaldamento
Centralizzato
Tipo Riscaldam.
Caldaia
Tipo Impianto
Radiatori
Fonte Energetica
Metano
Infissi
Legno
Serramenti
Buono
Pavimento
Ceramica
Numero Vetrine
Una
Mappa
viale giotto 11, Busto Arsizio (VA)
Condividi su
Cookie preference