Italiano
54.750 €

BILOCALE ALL'ASTA

2 locali in vendita • Inveruno - Via XXIV Maggio, 12
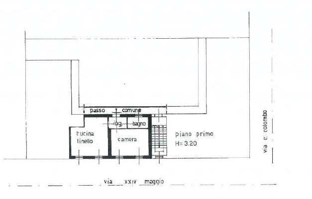
appartamento in comune di inveruno, via xxiv maggio 12, con ingresso da via c. colombo 1, posto al piano primo e composto da ingresso, due locali e bagno. Della superficie commerciale di 59 mq
appartamento in comune di inveruno, via xxiv maggio 12, con ingresso da via c. colombo 1, posto al piano primo e composto da ingresso, due locali e bagno. Della superficie commerciale di 59 mq
AFFARI ALL'ASTA è uno studio di consulenza che si occupa di aste immobiliari e saldo stralcio, dove il cliente viene seguito in tutto il percorso relativo all' acquisto tramite aste giudiziarie.
L' immobile viene venduto dal tribunale ed il prezzo indicato si riferisce all' offerta minima.
Contattaci per fissare un appuntamento per avere maggiori informazioni.
Per maggiori informazioni:
MILANO, VIA GIUSEPPE TARTINI, 12 (MI)
+39 3392588984
+39 3427176507

Per maggiori informazioni:
MILANO, VIA GIUSEPPE TARTINI, 12 (MI)
+39 3392588984
+39 3427176507

Caratteristiche principali
Codice
SNO7
Città
Inveruno
Categoria
2 locali
Prezzo
54.750 €
Locali
2
Bagni
1
Mq
59
Piano
1
Classe energetica
G
Stato Immobile
Buono
Grado
Medio
Posizione
Periferia
Panorama
Vista Aperta
Orientamento
Nord Ovest Sud Est
Giardino
Cortile
Arredi
Semi Arredato
Tipo Soggiorno
Sala da Pranzo
Tipo Cucina
A Vista
Riscaldamento
Autonomo
Tipo Riscaldam.
Caldaia
Tipo Impianto
Radiatori
Fonte Energetica
Metano
Infissi
Alluminio
Serramenti
Buono
Persiana
Persiana Legno
Pavim. Giorno
Ceramica
Pavim. Notte
Ceramica
Pavim. Cucina
Ceramica
Pavim. Bagno
Ceramica
Mappa
Via XXIV Maggio 12, Inveruno (MI)
Condividi su
Cookie preference