Italiano
166.875 €

VILLA SINGOLA ALL'ASTA

4 o più locali in vendita • Gavirate - Via Verdi, 41
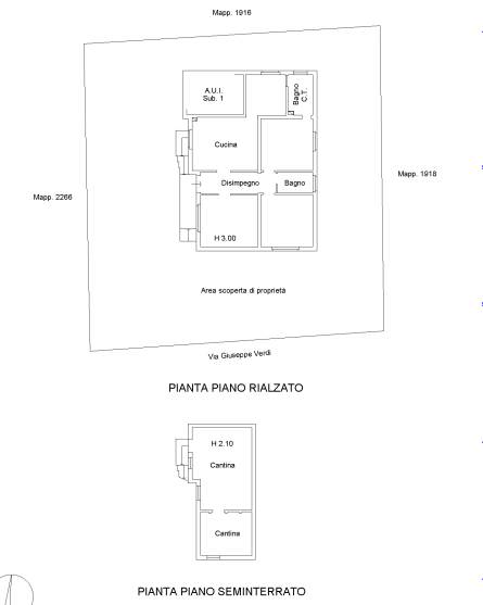
unità immobiliare sita in gavirate (va), via verdi n.41, posta al piano terreno. composta da ingresso-corridoio, cucina, soggiorno, due camere da letto, uno studio e due bagni, di cui uno comunicante con una camera da letto, un balcone-ballatoio d’ingresso, due vani cantina seminterrati accessibili da scala esterna, area esterna sistemata a giardino e cortile, oltre autorimessa singola posta al piano terreno con accesso dal cortile pertinenziale composta da unico vano.
AFFARI ALL'ASTA è uno studio di consulenza che si occupa di aste immobiliari e saldo stralcio, dove il cliente viene seguito in tutto il percorso relativo all' acquisto tramite aste giudiziarie.
L' immobile viene venduto dal tribunale ed il prezzo indicato si riferisce all' offerta minima.
Contattaci per fissare un appuntamento per avere maggiori informazioni.
Per maggiori informazioni:
MILANO, VIA GIUSEPPE TARTINI, 12 (MI)
+39 3392588984
+39 3427176507

Per maggiori informazioni:
MILANO, VIA GIUSEPPE TARTINI, 12 (MI)
+39 3392588984
+39 3427176507
Caratteristiche principali
Codice
SNO64
Città
Gavirate
Categoria
4 o più locali
Prezzo
166.875 €
Locali
4
Bagni
2
Mq
136
Box
1
Piano
Terra
Classe energetica
G
Stato Immobile
Buono
Grado
Medio
Posizione
Periferia
Panorama
Vista Aperta
Orientamento
Nord Ovest Sud Est
Giardino
Privato
Arredi
Semi Arredato
Tipo Soggiorno
Sala da Pranzo
Tipo Cucina
A Vista
Riscaldamento
Autonomo
Tipo Riscaldam.
Caldaia
Tipo Impianto
Radiatori
Fonte Energetica
Metano
Infissi
Legno
Serramenti
Buono
Persiana
Tapparella PVC
Pavim. Giorno
Ceramica
Pavim. Notte
Ceramica
Pavim. Cucina
Ceramica
Pavim. Bagno
Ceramica

Accessori: Camino, Porta Blindata

Mappa
Via Verdi 41, Gavirate (VA)
Condividi su
Cookie preference