Italiano
30.536 €

QUADRILOCALE ALL'ASTA

4 o più locali in vendita • Casei Gerola - Via carena, 40
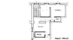
Porzione di casa di civile abitazione, composta a piano terra da ingresso, soggiorno, cucina e un bagno; una scala interna collega il piano terra al primo piano dove si trovano corridoio, tre camere e un bagno. Una seconda scala interna permette l'accesso del piano terra interrato, dove si trova un locale cantina-tavernetta. Lungo il lato Nord è annessa una striscia di sedime esclusivo. L'unità immobiliare presenta una superficie commerciale di mq 171,44. Autorimessa in corpo staccato in Via Carena n°38 con accesso attraverso il cortile comune.
AFFARI ALL'ASTA è uno studio di consulenza che si occupa di aste immobiliari e saldo stralcio, dove il cliente viene seguito in tutto il percorso relativo all' acquisto tramite aste giudiziarie.
L' immobile viene venduto dal tribunale ed il prezzo indicato si riferisce all' offerta minima.
Contattaci per fissare un appuntamento per avere maggiori informazioni.
Per maggiori informazioni:
MILANO, VIA GIUSEPPE TARTINI, 12 (MI)
+39 3392588984
+39 3427176507

Per maggiori informazioni:
MILANO, VIA GIUSEPPE TARTINI, 12 (MI)
+39 3392588984
+39 3427176507
Caratteristiche principali
Codice
SNO54
Città
Casei Gerola
Categoria
4 o più locali
Prezzo
30.536 €
Locali
4
Bagni
2
Mq
171
Box
1
Piano
Terra
Classe energetica
G
Stato Immobile
Buono
Grado
Medio
Posizione
Centro
Panorama
Vista Aperta
Orientamento
Nord Ovest Sud Est
Giardino
Cortile
Arredi
Semi Arredato
Tipo Soggiorno
Sala da Pranzo
Tipo Cucina
A Vista
Riscaldamento
Autonomo
Tipo Riscaldam.
Caldaia
Tipo Impianto
Radiatori
Fonte Energetica
Metano
Infissi
Legno
Serramenti
Buono
Persiana
Persiana Legno
Pavim. Giorno
Ceramica
Pavim. Notte
Ceramica
Pavim. Cucina
Ceramica
Pavim. Bagno
Ceramica

Accessori:

Mappa
Via carena 40, Casei Gerola (PV)
Condividi su
Cookie preference