Italiano
646.200 €

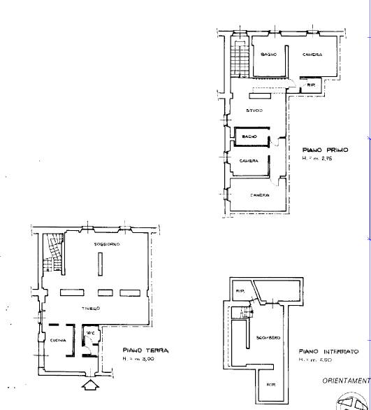
VILLA ALL'ASTA

4 o più locali in vendita • Carate Brianza - Via Stanga Busca, SNC
Carate Brianza (MB) Località Costa Lambro Via Montello angolo Piazza San Martino e Via Stanga Busca
Complesso immobiliare denominato "Residenza Villa Stanga Busca" composto da abitazione residenziale con annessi area pertinenziale a giardino, due box per auto ed un vano ripostiglio
Carate Brianza (MB) Località Costa Lambro Via Montello angolo Piazza San Martino e Via Stanga Busca
Complesso immobiliare denominato "Residenza Villa Stanga Busca" composto da abitazione residenziale con annessi area pertinenziale a giardino, due box per auto ed un vano ripostiglio
AFFARI ALL'ASTA è uno studio di consulenza che si occupa di aste immobiliari e saldo stralcio, dove il cliente viene seguito in tutto il percorso relativo all' acquisto tramite aste giudiziarie.
L' immobile viene venduto dal tribunale ed il prezzo indicato si riferisce all' offerta minima.
Contattaci per fissare un appuntamento per avere maggiori informazioni.
Per maggiori informazioni:
MILANO, VIA GIUSEPPE TARTINI, 12 (MI)
+39 3392588984
+39 3427176507

Per maggiori informazioni:
MILANO, VIA GIUSEPPE TARTINI, 12 (MI)
+39 3392588984
+39 3427176507

Caratteristiche principali
Codice
SNO51
Città
Carate Brianza
Categoria
4 o più locali
Prezzo
646.200 €
Locali
6
Mq
352
Box
2
Piano
Terra
Classe energetica
G
Stato Immobile
Buono
Grado
Medio
Posizione
Periferia
Panorama
Vista Aperta
Orientamento
Nord Ovest Sud Est
Giardino
Privato
Arredi
Semi Arredato
Tipo Soggiorno
Doppio
Tipo Cucina
A Vista
Riscaldamento
Autonomo
Tipo Riscaldam.
Caldaia
Tipo Impianto
Radiatori
Fonte Energetica
Metano
Infissi
Legno
Serramenti
Ottimo
Persiana
Persiana Legno
Pavim. Giorno
Ceramica
Pavim. Notte
Parquet
Pavim. Cucina
Ceramica
Pavim. Bagno
Ceramica

Accessori: Porta Blindata, Ripostiglio

Mappa
Via Stanga Busca SNC, Carate Brianza (MB)
Condividi su
Cookie preference