Italiano
18.273 €

CASA SINGOLA ALL'ASTA

4 o più locali in vendita • Cozzo - Via Maestra, 17
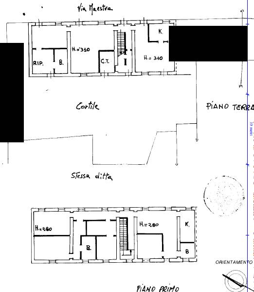
fabbricato di civile abitazione in mediocre stato di conservazione a due piani fuori terra collegati da scala interna con annesso cortile di proprietà esclusiva costituente pertinenza del fabbricato abitativo in oggetto. l’abitazione risulta così distribuita: al piano terra ingresso, sala da pranzo, cucina, bagno posto nel sottoscala, soggiorno, camera con disimpegno e secondo bagno; al piano primo tre camere di cui una con ripostiglio finestrato e due bagni, una cameretta, un ulteriore disimpegno e un ulteriore bagno. al piano terra è situato il locale tecnico della centrale termica accessibile dal cortile esterno.
appezzamento di terreno agricolo posto sul retro dell’abitazione recintato allo stato attuale incolto e abbandonato.
AFFARI ALL'ASTA è uno studio di consulenza che si occupa di aste immobiliari e saldo stralcio, dove il cliente viene seguito in tutto il percorso relativo all' acquisto tramite aste giudiziarie.
L' immobile viene venduto dal tribunale ed il prezzo indicato si riferisce all' offerta minima.
Contattaci per fissare un appuntamento per avere maggiori informazioni.
Per maggiori informazioni:
MILANO, VIA GIUSEPPE TARTINI, 12 (MI)
+39 3392588984
+39 3427176507

Per maggiori informazioni:
MILANO, VIA GIUSEPPE TARTINI, 12 (MI)
+39 3392588984
+39 3427176507

Caratteristiche principali
Codice
SNO39
Città
Cozzo
Categoria
4 o più locali
Prezzo
18.273 €
Locali
7
Bagni
1
Mq
362
Box
1
Piano
Terra
Classe energetica
G
Stato Immobile
Buono
Grado
Medio
Posizione
Centro
Panorama
Vista Aperta
Orientamento
Nord Ovest Sud Est
Giardino
Cortile
Arredi
Semi Arredato
Tipo Soggiorno
Doppio
Tipo Cucina
A Vista
Riscaldamento
Autonomo
Tipo Riscaldam.
Caldaia
Tipo Impianto
Radiatori
Fonte Energetica
Metano
Infissi
Legno
Serramenti
Buono
Persiana
Persiana Legno
Pavim. Giorno
Ceramica
Pavim. Notte
Ceramica
Pavim. Cucina
Ceramica
Pavim. Bagno
Ceramica
Mappa
Via Maestra 17, Cozzo (PV)
Condividi su
Cookie preference