Italiano
25.425 €

TRILOCALE ALL'ASTA

3 locali in vendita • Vigevano - Via Adige , 36/38
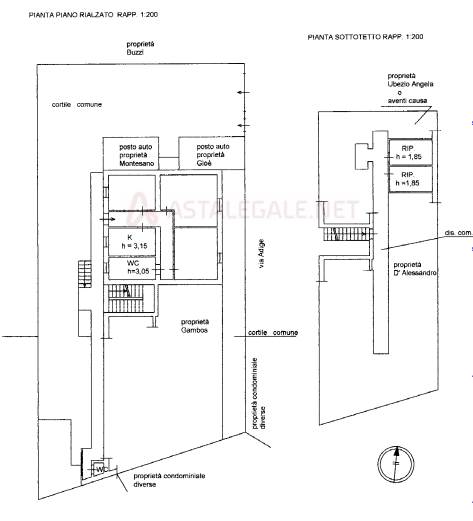
appartamento al piano rialzato composto da tre locali con servizi, e due soffitte nel sottotetto oltre ad autorimessa in corpo staccato, della superficie commerciale di 99 mq
appartamento al piano rialzato composto da tre locali con servizi, e due soffitte nel sottotetto oltre ad autorimessa in corpo staccato, della superficie commerciale di 99 mq
AFFARI ALL'ASTA è uno studio di consulenza che si occupa di aste immobiliari e saldo stralcio, dove il cliente viene seguito in tutto il percorso relativo all' acquisto tramite aste giudiziarie.
L' immobile viene venduto dal tribunale ed il prezzo indicato si riferisce all' offerta minima.
Contattaci per fissare un appuntamento per avere maggiori informazioni.
Per maggiori informazioni:
MILANO, VIA GIUSEPPE TARTINI, 12 (MI)
+39 3392588984
+39 3427176507

Per maggiori informazioni:
MILANO, VIA GIUSEPPE TARTINI, 12 (MI)
+39 3392588984
+39 3427176507

Caratteristiche principali
Codice
SNO352
Città
Vigevano
Categoria
3 locali
Prezzo
25.425 €
Locali
3
Mq
99
Box
1
Piano
Terra
Classe energetica
G
Stato Immobile
Buono
Grado
Medio
Posizione
Periferia
Panorama
Vista Aperta
Orientamento
Nord Ovest Sud Est
Giardino
Cortile
Arredi
Semi Arredato
Tipo Soggiorno
Sala da Pranzo
Tipo Cucina
A Vista
Riscaldamento
Autonomo
Tipo Riscaldam.
Caldaia
Tipo Impianto
Radiatori
Fonte Energetica
Metano
Infissi
Legno
Serramenti
Buono
Persiana
Tapparella Legno
Pavim. Giorno
Ceramica
Pavim. Notte
Ceramica
Pavim. Cucina
Ceramica
Pavim. Bagno
Ceramica
Mappa
Via Adige 36/38, Vigevano (PV)
Condividi su
Cookie preference