Italiano
56.910 €

TRILOCALE ALL'ASTA

3 locali in vendita • Marcignago
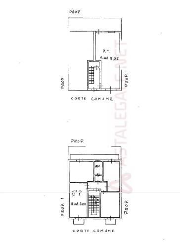
appartamento di civile abitazione posto al secondo ed ultimo piano, con spazi accessori pertinenziali al piano terra. l'appartamento è composto da: un ingresso/corridoio, un ampio soggiorno, un ripostiglio e una cucina abitabile che compongono la zona giorno. due ampie camere da letto e un bagno completano l'unità che risulta dotata di due piccoli balconi aperti sul prospetto principale del fabbricato (rispettivamente accessibili da soggiorno e camera matrimoniale) e una lunga balconata sul retro su cui affacciano cucina, bagno e seconda camera.
AFFARI ALL'ASTA è uno studio di consulenza che si occupa di aste immobiliari e saldo stralcio, dove il cliente viene seguito in tutto il percorso relativo all' acquisto tramite aste giudiziarie.
L' immobile viene venduto dal tribunale ed il prezzo indicato si riferisce all' offerta minima.
Contattaci per fissare un appuntamento per avere maggiori informazioni.
Per maggiori informazioni:
MILANO, VIA GIUSEPPE TARTINI, 12 (MI)
+39 3392588984
+39 3427176507

Per maggiori informazioni:
MILANO, VIA GIUSEPPE TARTINI, 12 (MI)
+39 3392588984
+39 3427176507

Caratteristiche principali
Codice
SNO345
Città
Marcignago
Categoria
3 locali
Prezzo
56.910 €
Locali
3
Bagni
1
Mq
116
Piano
2
Classe energetica
G
Stato Immobile
Buono
Grado
Medio
Posizione
Periferia
Panorama
Vista Aperta
Orientamento
Nord Ovest Sud Est
Giardino
Cortile
Arredi
Semi Arredato
Tipo Soggiorno
Sala da Pranzo
Tipo Cucina
A Vista
Riscaldamento
Autonomo
Tipo Riscaldam.
Caldaia
Tipo Impianto
Radiatori
Fonte Energetica
Metano
Infissi
Legno
Serramenti
Buono
Persiana
Tapparella PVC
Pavim. Giorno
Ceramica
Pavim. Notte
Ceramica
Pavim. Cucina
Ceramica
Pavim. Bagno
Ceramica
Condividi su
Cookie preference