Italiano
280.000 €

SETTE LOCALI ALL'ASTA

4 o più locali in vendita • Busto Arsizio - Via G. Castiglioni, 7
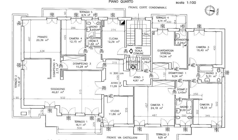
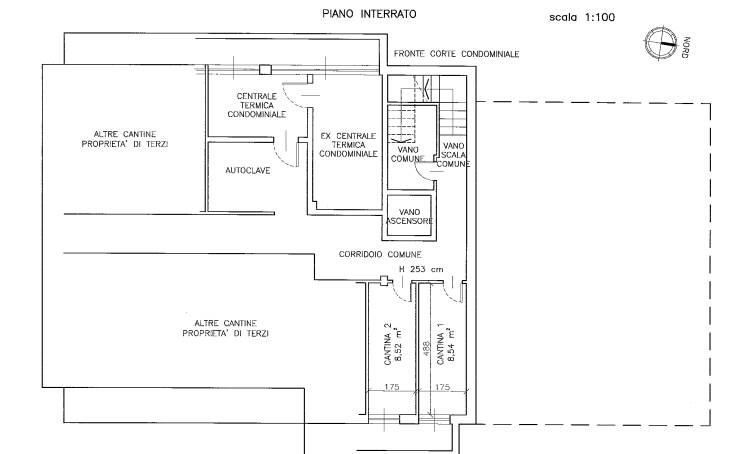
appartamento posto al piano quarto composto da sette locali con doppi servizi, due cantine sito in busto arsizio in via giuseppe castiglioni, 7, della superficie commerciale di circa 300 mq. con annesso box.
appartamento posto al piano quarto composto da sette locali con doppi servizi, due cantine sito in busto arsizio in via giuseppe castiglioni, 7, della superficie commerciale di circa 300 mq. con annesso box.
AFFARI ALL'ASTA è uno studio di consulenza che si occupa di aste immobiliari e saldo stralcio, dove il cliente viene seguito in tutto il percorso relativo all' acquisto tramite aste giudiziarie.
L' immobile viene venduto dal tribunale ed il prezzo indicato si riferisce all' offerta minima.
Contattaci per fissare un appuntamento per avere maggiori informazioni.
Per maggiori informazioni:
MILANO, VIA GIUSEPPE TARTINI, 12 (MI)
+39 3392588984
+39 3427176507

Per maggiori informazioni:
MILANO, VIA GIUSEPPE TARTINI, 12 (MI)
+39 3392588984
+39 3427176507
Caratteristiche principali
Codice
SNO323
Città
Busto Arsizio
Categoria
4 o più locali
Prezzo
280.000 €
Locali
7
Mq
304
Box
1
Piano
4
Classe energetica
G
Stato Immobile
Buono
Grado
Medio
Posizione
Centro
Panorama
Vista Aperta
Orientamento
Nord Ovest Sud Est
Giardino
Cortile
Arredi
Semi Arredato
Tipo Soggiorno
Doppio
Tipo Cucina
A Vista
Riscaldamento
Centralizzato
Tipo Riscaldam.
Caldaia
Tipo Impianto
Radiatori
Fonte Energetica
Metano
Infissi
Legno
Serramenti
Buono
Persiana
Tapparella PVC
Pavim. Giorno
Ceramica
Pavim. Notte
Ceramica
Pavim. Cucina
Ceramica
Pavim. Bagno
Ceramica

Accessori: Ascensore

Mappa
Via G. Castiglioni 7, Busto Arsizio (VA)
Condividi su
Cookie preference