Italiano
93.743 €

MONOLOCALE

1 locale in vendita • Caponago - Via Silvio Pellico, 10/34
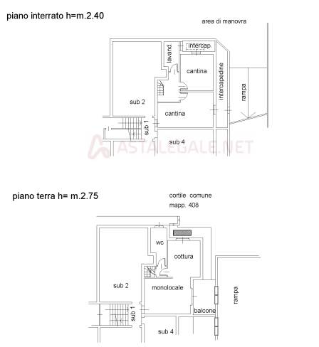
appartamento di mq. 86,17, piano terreno, ingresso-soggiorno, cucina e bagno; una scala interna collega ad un piano seminterrato adibito a zona notte con due camere da letto e bagno-lavanderia. completano la proprietà una piccola porzione di area condominiale al piano terreno concessa in uso esclusivo e vano autorimessa al piano interrato.
si evidenzia che nella documentazione edilizia e catastale la zona notte realizzata al piano seminterrato viene identificata ad uso cantina e intercapedine.
box singolo, composto da unico vano ad uso autorimessa privata.
AFFARI ALL'ASTA è uno studio di consulenza che si occupa di aste immobiliari e saldo stralcio, dove il cliente viene seguito in tutto il percorso relativo all' acquisto tramite aste giudiziarie.
L' immobile viene venduto dal tribunale ed il prezzo indicato si riferisce all' offerta minima.
Contattaci per fissare un appuntamento per avere maggiori informazioni.
Per maggiori informazioni:
MILANO, VIA GIUSEPPE TARTINI, 12 (MI)
+39 3392588984
+39 3427176507

Per maggiori informazioni:
MILANO, VIA GIUSEPPE TARTINI, 12 (MI)
+39 3392588984
+39 3427176507
Caratteristiche principali
Codice
SNO321
Città
Caponago
Categoria
1 locale
Prezzo
93.743 €
Locali
1
Bagni
1
Mq
86
Piano
Terra
Classe energetica
G
Stato Immobile
Buono
Grado
Medio
Posizione
Centro
Panorama
Vista Aperta
Orientamento
Nord Ovest Sud Est
Giardino
Privato
Arredi
Semi Arredato
Tipo Soggiorno
Sala da Pranzo
Tipo Cucina
A Vista
Riscaldamento
Autonomo
Tipo Riscaldam.
Caldaia
Tipo Impianto
Radiatori
Fonte Energetica
Metano
Infissi
Legno
Serramenti
Buono
Persiana
Persiana Legno
Pavim. Giorno
Ceramica
Pavim. Notte
Ceramica
Pavim. Cucina
Ceramica
Pavim. Bagno
Ceramica

Accessori: Lavanderia, Porta Blindata, Video Citofono

Mappa
Via Silvio Pellico 10/34, Caponago (MB)
Condividi su
Cookie preference