Italiano
66.000 €

TRILOCALE ALL'ASTA

3 locali in vendita • Lonate Pozzolo - Via Novara , 4
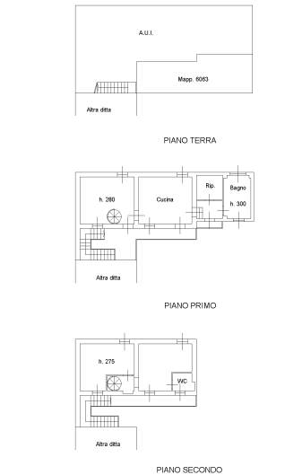
piena ed intera proprieta’, abitazione indipendente della superficie commerciale di mq. 142,55 disposta su tre livelli, composto da tre locali con doppi servizi
piena ed intera proprieta’, abitazione indipendente della superficie commerciale di mq. 142,55 disposta su tre livelli, composto da tre locali con doppi servizi
AFFARI ALL'ASTA è uno studio di consulenza che si occupa di aste immobiliari e saldo stralcio, dove il cliente viene seguito in tutto il percorso relativo all' acquisto tramite aste giudiziarie.
L' immobile viene venduto dal tribunale ed il prezzo indicato si riferisce all' offerta minima.
Contattaci per fissare un appuntamento per avere maggiori informazioni.
Per maggiori informazioni:
MILANO, VIA GIUSEPPE TARTINI, 12 (MI)
+39 3392588984
+39 3427176507

Per maggiori informazioni:
MILANO, VIA GIUSEPPE TARTINI, 12 (MI)
+39 3392588984
+39 3427176507
Caratteristiche principali
Codice
SNO303
Città
Lonate Pozzolo
Categoria
3 locali
Prezzo
66.000 €
Locali
3
Bagni
1
Mq
142
Piano
Terra
Classe energetica
G
Stato Immobile
Buono
Grado
Medio
Posizione
Centro Storico
Panorama
Vista Aperta
Orientamento
Nord Ovest Sud Est
Giardino
Cortile
Arredi
Non Arredato
Tipo Soggiorno
Sala da Pranzo
Tipo Cucina
A Vista
Riscaldamento
Autonomo
Tipo Riscaldam.
Caldaia
Tipo Impianto
Radiatori
Fonte Energetica
Metano
Infissi
Legno
Serramenti
Buono
Persiana
Tapparella PVC
Pavim. Giorno
Ceramica
Pavim. Notte
Ceramica
Pavim. Cucina
Ceramica
Pavim. Bagno
Ceramica
Mappa
Via Novara 4, Lonate Pozzolo (VA)
Condividi su
Cookie preference