Italiano
15.378 €

TRILOCALE ALL'ASTA

3 locali in vendita • Sartirana Lomellina - Via Torniella, 6
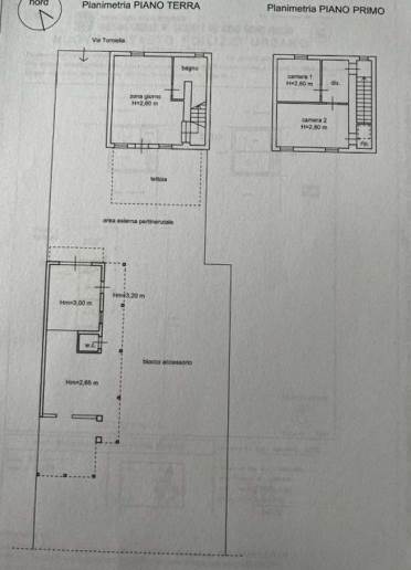
abitazione su due livelli fuori terra con blocco accessorio esterno ed area esterna esclusiva di pertinenza. l’abitazione è composta da un locale, cucina, disimpegno, corridoio e bagno al piano terra, due locali e corridoio al piano primo con annessi rustici e box al piano terreno, oltre a cortile.
abitazione su due livelli fuori terra con blocco accessorio esterno ed area esterna esclusiva di pertinenza. l’abitazione è composta da un locale, cucina, disimpegno, corridoio e bagno al piano terra, due locali e corridoio al piano primo con annessi rustici e box al piano terreno, oltre a cortile.
AFFARI ALL'ASTA è uno studio di consulenza che si occupa di aste immobiliari e saldo stralcio, dove il cliente viene seguito in tutto il percorso relativo all' acquisto tramite aste giudiziarie.
L' immobile viene venduto dal tribunale ed il prezzo indicato si riferisce all' offerta minima.
Contattaci per fissare un appuntamento per avere maggiori informazioni.
Per maggiori informazioni:
MILANO, VIA GIUSEPPE TARTINI, 12 (MI)
+39 3392588984
+39 3427176507

Per maggiori informazioni:
MILANO, VIA GIUSEPPE TARTINI, 12 (MI)
+39 3392588984
+39 3427176507
Caratteristiche principali
Codice
SNO30
Città
Sartirana Lomellina
Categoria
3 locali
Prezzo
15.378 €
Locali
3
Bagni
1
Mq
133
Box
1
Piano
Terra
Classe energetica
G
Stato Immobile
Buono
Grado
Medio
Posizione
Periferia
Panorama
Vista Aperta
Orientamento
Nord Ovest Sud Est
Giardino
Cortile
Arredi
Semi Arredato
Tipo Soggiorno
Sala da Pranzo
Tipo Cucina
A Vista
Riscaldamento
Autonomo
Infissi
Legno
Serramenti
Buono
Persiana
Persiana Legno
Pavim. Giorno
Ceramica
Pavim. Notte
Ceramica
Pavim. Cucina
Ceramica
Pavim. Bagno
Ceramica

Accessori: Porta Blindata

Mappa
Via Torniella 6, Sartirana Lomellina (PV)
Condividi su
Cookie preference