Italiano
302.535 €

TERRENO EDIFICABILE ALL'ASTA

Terreno Edificabile in vendita • Solaro - Via Drizza Via Donizzetti, 20
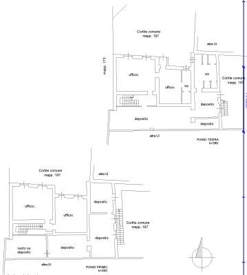
terreno edificabile di ampia metrature ora con capannone industriale, abitazione, negozi e aree pertinenzali, siti in Solaro alla Via Drizza/Via Donizzetti 20, della superficie commerciale di 1792 mq
terreno edificabile di ampia metrature ora con capannone industriale, abitazione, negozi e aree pertinenzali, siti in Solaro alla Via Drizza/Via Donizzetti 20, della superficie commerciale di 1792 mq
AFFARI ALL'ASTA è uno studio di consulenza che si occupa di aste immobiliari e saldo stralcio, dove il cliente viene seguito in tutto il percorso relativo all' acquisto tramite aste giudiziarie.
L' immobile viene venduto dal tribunale ed il prezzo indicato si riferisce all' offerta minima.
Contattaci per fissare un appuntamento per avere maggiori informazioni.
Per maggiori informazioni:
MILANO, VIA GIUSEPPE TARTINI, 12 (MI)
+39 3392588984
+39 3427176507

Per maggiori informazioni:
MILANO, VIA GIUSEPPE TARTINI, 12 (MI)
+39 3392588984
+39 3427176507
Caratteristiche principali
Codice
SNO287
Città
Solaro
Categoria
Terreno Edificabile
Prezzo
302.535 €
Locali
10
Mq
1792
Piano
Terra
Classe energetica
G
Stato Immobile
Buono
Grado
Medio
Posizione
Periferia
Panorama
Vista Aperta
Orientamento
Nord Ovest Sud Est
Riscaldamento
Autonomo
Infissi
Alluminio
Serramenti
Buono
Pavimento
Cemento
Mappa
Via Drizza Via Donizzetti 20, Solaro (MI)
Condividi su
Cookie preference