Italiano
120.000 €

BILOCALE ALL'ASTA

2 locali in vendita • Bareggio - Via Isonzo, 30
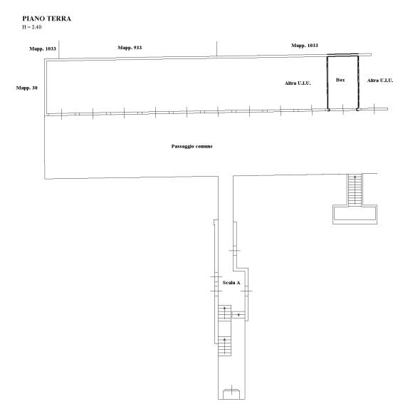
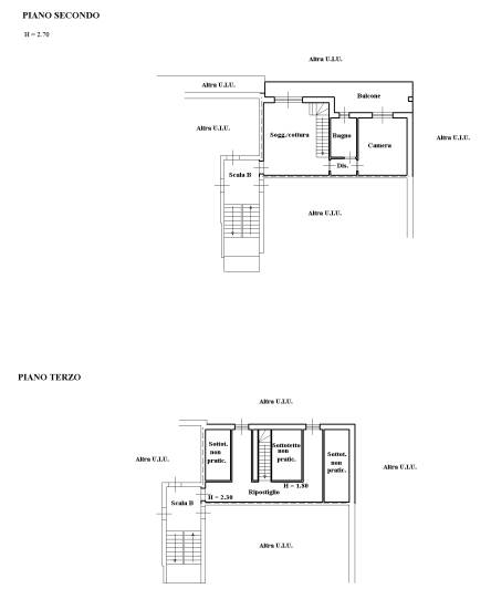
piena proprietà di appartamento ad uso abitazione posto al piano 2-3 composto da ingresso/soggiorno, bagno, disimpegno, cucina, scala di collegamento al piano terzo con destinazione d’uso soffitta, ma così distribuito, vano letto, bagno ed altro vano letto, oltre box al piano terra, della superficie commerciale di 81 mq
AFFARI ALL'ASTA è uno studio di consulenza che si occupa di aste immobiliari e saldo stralcio, dove il cliente viene seguito in tutto il percorso relativo all' acquisto tramite aste giudiziarie.
L' immobile viene venduto dal tribunale ed il prezzo indicato si riferisce all' offerta minima.
Contattaci per fissare un appuntamento per avere maggiori informazioni.
Per maggiori informazioni:
MILANO, VIA GIUSEPPE TARTINI, 12 (MI)
+39 3392588984
+39 3427176507

Per maggiori informazioni:
MILANO, VIA GIUSEPPE TARTINI, 12 (MI)
+39 3392588984
+39 3427176507
Caratteristiche principali
Codice
SNO273
Città
Bareggio
Categoria
2 locali
Prezzo
120.000 €
Locali
2
Bagni
1
Mq
60
Box
1
mq Terrazzo
3
Piano
1
Classe energetica
G
Stato Immobile
Buono
Grado
Medio
Posizione
Periferia
Panorama
Vista Aperta
Orientamento
Nord Ovest Sud Est
Giardino
Cortile
Arredi
Semi Arredato
Tipo Soggiorno
Sala da Pranzo
Tipo Cucina
A Vista
Riscaldamento
Centralizzato
Tipo Riscaldam.
Caldaia
Tipo Impianto
Pavimento
Fonte Energetica
Metano
Infissi
Legno Doppio Vetro
Serramenti
Buono
Persiana
Persiana Legno
Pavim. Giorno
Ceramica
Pavim. Notte
Parquet
Pavim. Cucina
Ceramica
Pavim. Bagno
Ceramica

Accessori: Aria Condizionata, Porta Blindata, Ripostiglio

Mappa
Via Isonzo 30, Bareggio (MI)
Condividi su
Cookie preference