Italiano
87.600 €

BILOCALE ALL'ASTA

2 locali in vendita • Buccinasco - Via dei Platani, 9
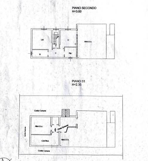
appartamento, posto al piano terzo, senza ascensore, composto da ingresso, cucina/soggiorno/pranzo, un bagno, una camera e un ripostiglio oltre un vano di cantina al piano seminterrato. Della superficie commerciale di 76 mq
appartamento, posto al piano terzo, senza ascensore, composto da ingresso, cucina/soggiorno/pranzo, un bagno, una camera e un ripostiglio oltre un vano di cantina al piano seminterrato. Della superficie commerciale di 76 mq
AFFARI ALL'ASTA è uno studio di consulenza che si occupa di aste immobiliari e saldo stralcio, dove il cliente viene seguito in tutto il percorso relativo all' acquisto tramite aste giudiziarie.
L' immobile viene venduto dal tribunale ed il prezzo indicato si riferisce all' offerta minima.
Contattaci per fissare un appuntamento per avere maggiori informazioni.
Per maggiori informazioni:
MILANO, VIA GIUSEPPE TARTINI, 12 (MI)
+39 3392588984
+39 3427176507

Per maggiori informazioni:
MILANO, VIA GIUSEPPE TARTINI, 12 (MI)
+39 3392588984
+39 3427176507
Caratteristiche principali
Codice
SNO272
Città
Buccinasco
Categoria
2 locali
Prezzo
87.600 €
Locali
2
Bagni
1
Mq
76
Piano
3
Classe energetica
G
Stato Immobile
Buono
Grado
Medio
Posizione
Periferia
Panorama
Vista Aperta
Orientamento
Nord Ovest Sud Est
Giardino
Cortile
Arredi
Semi Arredato
Tipo Soggiorno
Sala da Pranzo
Tipo Cucina
A Vista
Riscaldamento
Autonomo
Tipo Riscaldam.
Caldaia
Tipo Impianto
Radiatori
Fonte Energetica
Metano
Infissi
PVC Doppio Vetro
Serramenti
Buono
Persiana
Tapparella PVC
Pavim. Giorno
Ceramica
Pavim. Notte
Ceramica
Pavim. Cucina
Ceramica
Pavim. Bagno
Ceramica

Accessori: Ripostiglio

Mappa
Via dei Platani 9, Buccinasco (MI)
Condividi su
Cookie preference