Italiano
25.500 €

TRILOCALE ALL'ASTA

3 locali in vendita • Belgioioso - Via Molino , 35/D
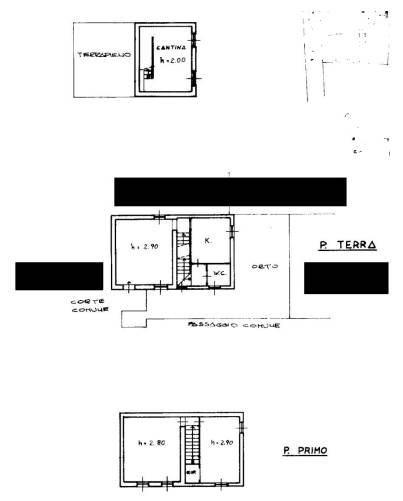
abitazione edificata a due piani fuori terra e uno parzialmente entro terra messa in cortina edilizia con annessa area di pertinenza di proprietà esclusiva sul fronte sud-est con salto di quota. Composta da tre locali con servizi, della superficie commerciale di 132 mq
abitazione edificata a due piani fuori terra e uno parzialmente entro terra messa in cortina edilizia con annessa area di pertinenza di proprietà esclusiva sul fronte sud-est con salto di quota. Composta da tre locali con servizi, della superficie commerciale di 132 mq
AFFARI ALL'ASTA è uno studio di consulenza che si occupa di aste immobiliari e saldo stralcio, dove il cliente viene seguito in tutto il percorso relativo all' acquisto tramite aste giudiziarie.
L' immobile viene venduto dal tribunale ed il prezzo indicato si riferisce all' offerta minima.
Contattaci per fissare un appuntamento per avere maggiori informazioni.
Per maggiori informazioni:
MILANO, VIA GIUSEPPE TARTINI, 12 (MI)
+39 3392588984
+39 3427176507

Per maggiori informazioni:
MILANO, VIA GIUSEPPE TARTINI, 12 (MI)
+39 3392588984
+39 3427176507
Caratteristiche principali
Codice
SNO254
Città
Belgioioso
Categoria
3 locali
Prezzo
25.500 €
Locali
3
Mq
132
Piano
Terra
Classe energetica
G
Stato Immobile
Buono
Grado
Medio
Posizione
Periferia
Panorama
Vista Aperta
Orientamento
Nord Ovest Sud Est
Giardino
Privato
Arredi
Semi Arredato
Tipo Soggiorno
Sala da Pranzo
Tipo Cucina
A Vista
Riscaldamento
Autonomo
Tipo Riscaldam.
Caldaia
Tipo Impianto
Radiatori
Fonte Energetica
Metano
Infissi
Legno Doppio Vetro
Serramenti
Buono
Persiana
Persiana Legno
Pavim. Giorno
Ceramica
Pavim. Notte
Ceramica
Pavim. Cucina
Ceramica
Pavim. Bagno
Ceramica

Accessori: Ripostiglio

Mappa
Via Molino 35/D, Belgioioso (PV)
Condividi su
Cookie preference