Italiano
26.202 €

QUADRILOCALE ALL'ASTA

4 o più locali in vendita • Corvino San Quirico - Via CASTELLO , 5
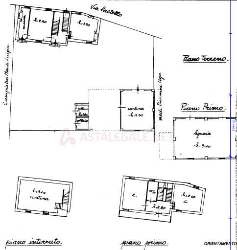
abitazione disposta su due piani fuori terra e uno interrato, tra loro comunicanti a mezzo di scala interna, della superficie lorda complessiva mq. 143,14, composta da locale cantina (superficie mq. 26,18) al piano seminterrato, da ingresso diretto nel soggiorno con angolo cottura, servizio in fase di completamento, disimpegno, vano scala ed un locale di sgombero al piano terra, da camera, bagno, balcone, disimpegno e locale di sgombero al piano primo, oltre a dei rustici in corpo staccato, in precarie condizioni strutturali, adibiti a pollaio, una cantina a piano terreno con sovrastante legnaia al piano primo e box per auto al piano terreno, con circostante piccola porzione di sedime pertinenziale adibita a cortile e adiacenti tre appezzamenti di terreno.
AFFARI ALL'ASTA è uno studio di consulenza che si occupa di aste immobiliari e saldo stralcio, dove il cliente viene seguito in tutto il percorso relativo all' acquisto tramite aste giudiziarie.
L' immobile viene venduto dal tribunale ed il prezzo indicato si riferisce all' offerta minima.
Contattaci per fissare un appuntamento per avere maggiori informazioni.
Per maggiori informazioni:
MILANO, VIA GIUSEPPE TARTINI, 12 (MI)
+39 3392588984
+39 3427176507

Per maggiori informazioni:
MILANO, VIA GIUSEPPE TARTINI, 12 (MI)
+39 3392588984
+39 3427176507
Caratteristiche principali
Codice
SNO237
Città
Corvino San Quirico
Categoria
4 o più locali
Prezzo
26.202 €
Locali
4
Bagni
1
Mq
143
Box
1
Piano
Terra
Classe energetica
G
Stato Immobile
Buono
Grado
Medio
Posizione
Periferia
Panorama
Vista Aperta
Orientamento
Nord Ovest Sud Est
Giardino
Cortile
Arredi
Semi Arredato
Tipo Soggiorno
Sala da Pranzo
Tipo Cucina
A Vista
Riscaldamento
Autonomo
Tipo Riscaldam.
Caldaia
Tipo Impianto
Radiatori
Fonte Energetica
Metano
Infissi
Legno
Serramenti
Buono
Persiana
Persiana Legno
Pavim. Giorno
Ceramica
Pavim. Notte
Ceramica
Pavim. Cucina
Ceramica
Pavim. Bagno
Ceramica

Accessori: Ripostiglio

Mappa
Via CASTELLO 5, Corvino San Quirico (PV)
Condividi su
Cookie preference