Italiano
173.700 €

TRILOCALE ALL'ASTA

3 locali in vendita • Cusano Milanino - Via L. Galvani, 8
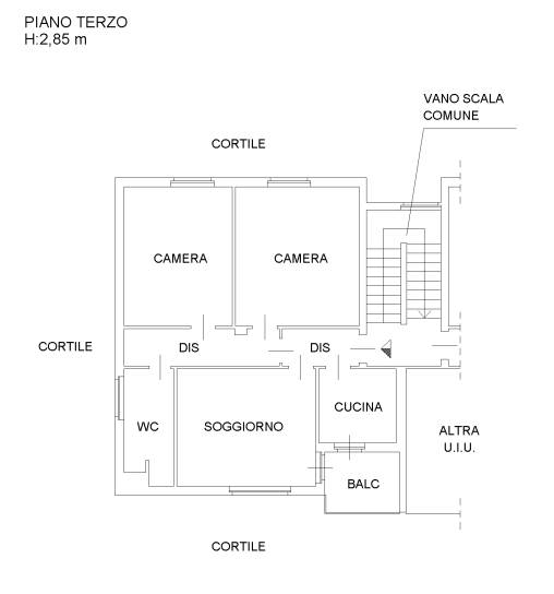
appartamento posto al piano terzo, composto da ingresso, disimpegno, cucina, soggiorno, bagno, due camere, un balcone. cantina al piano seminterrato. Della superficie commerciale di 88 mq, dotato di riscaldamento centralizzato
appartamento posto al piano terzo, composto da ingresso, disimpegno, cucina, soggiorno, bagno, due camere, un balcone. cantina al piano seminterrato. Della superficie commerciale di 88 mq, dotato di riscaldamento centralizzato
AFFARI ALL'ASTA è uno studio di consulenza che si occupa di aste immobiliari e saldo stralcio, dove il cliente viene seguito in tutto il percorso relativo all' acquisto tramite aste giudiziarie.
L' immobile viene venduto dal tribunale ed il prezzo indicato si riferisce all' offerta minima.
Contattaci per fissare un appuntamento per avere maggiori informazioni.
Per maggiori informazioni:
MILANO, VIA GIUSEPPE TARTINI, 12 (MI)
+39 3392588984
+39 3427176507

Per maggiori informazioni:
MILANO, VIA GIUSEPPE TARTINI, 12 (MI)
+39 3392588984
+39 3427176507

Caratteristiche principali
Codice
SNO214
Città
Cusano Milanino
Categoria
3 locali
Prezzo
173.700 €
Locali
3
Bagni
1
Mq
88
Piano
3
Classe energetica
G
Stato Immobile
Buono
Grado
Medio
Posizione
Periferia
Panorama
Vista Aperta
Orientamento
Nord Ovest Sud Est
Giardino
Cortile
Arredi
Semi Arredato
Tipo Soggiorno
Sala da Pranzo
Tipo Cucina
A Vista
Riscaldamento
Centralizzato
Tipo Riscaldam.
Caldaia
Tipo Impianto
Radiatori
Fonte Energetica
Metano
Infissi
Legno Doppio Vetro
Serramenti
Buono
Persiana
Tapparella PVC
Pavim. Giorno
Ceramica
Pavim. Notte
Parquet
Pavim. Cucina
Ceramica
Pavim. Bagno
Ceramica

Accessori: Aria Condizionata, Pannelli Solari

Mappa
Via L. Galvani 8, Cusano Milanino (MI)
Condividi su
Cookie preference