Italiano
135.000 €

BILOCALE ALL'ASTA

2 locali in vendita • Milano (V Giornate/ XXII Marzo/ Porta Romana) - V.le Bligny, 42
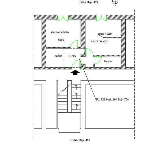
milano, viale bligny n. 42: piena proprietà di appartamento al piano quarto, composto da due camere, cucina e bagno non finestrati, disimpegno. Della superficie commerciale di 48 mq
milano, viale bligny n. 42: piena proprietà di appartamento al piano quarto, composto da due camere, cucina e bagno non finestrati, disimpegno. Della superficie commerciale di 48 mq
AFFARI ALL'ASTA è uno studio di consulenza che si occupa di aste immobiliari e saldo stralcio, dove il cliente viene seguito in tutto il percorso relativo all' acquisto tramite aste giudiziarie.
L' immobile viene venduto dal tribunale ed il prezzo indicato si riferisce all' offerta minima.
Contattaci per fissare un appuntamento per avere maggiori informazioni.
Per maggiori informazioni:
MILANO, VIA GIUSEPPE TARTINI, 12 (MI)
+39 3392588984
+39 3427176507

Per maggiori informazioni:
MILANO, VIA GIUSEPPE TARTINI, 12 (MI)
+39 3392588984
+39 3427176507

Caratteristiche principali
Codice
SNO207
Città
Milano (V Giornate/ XXII Marzo/ Porta Romana)
Categoria
2 locali
Prezzo
135.000 €
Locali
2
Bagni
1
Mq
48
Piano
4
Classe energetica
G
Stato Immobile
Buono
Grado
Medio
Posizione
Centro
Panorama
Vista Aperta
Orientamento
Nord Ovest Sud Est
Giardino
Cortile
Arredi
Semi Arredato
Tipo Soggiorno
Sala da Pranzo
Tipo Cucina
A Vista
Riscaldamento
Autonomo
Tipo Riscaldam.
Pompa di Calore
Tipo Impianto
Aria
Fonte Energetica
Elettrico
Infissi
Alluminio
Serramenti
Buono
Persiana
Persiana Legno
Pavim. Giorno
Ceramica
Pavim. Notte
Ceramica
Pavim. Cucina
Ceramica
Pavim. Bagno
Ceramica

Accessori: Aria Condizionata, Porta Blindata, Portineria/Custode

Mappa
V.le Bligny 42, Milano (MI)
Condividi su
Cookie preference