Italiano
141.750 €

VILLA A SCHIERA ALL'ASTA

4 o più locali in vendita • Milano (Chiesa Rossa/ Cermenate/ Ripamonti) - Via Rozzano, SNC
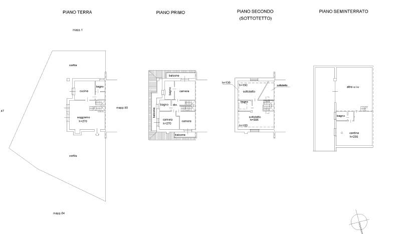
comune di Milano, via rozzano snc, villetta a schiera, disposta su quattro livelli, piano interrato, terra, primo e secondo. Composto da quattro locali con doppi servizi, della superficie commerciale di 264 mq, autorimessa. L'immobile è allo stato rustico
comune di Milano, via rozzano snc, villetta a schiera, disposta su quattro livelli, piano interrato, terra, primo e secondo. Composto da quattro locali con doppi servizi, della superficie commerciale di 264 mq, autorimessa. L'immobile è allo stato rustico
AFFARI ALL'ASTA è uno studio di consulenza che si occupa di aste immobiliari e saldo stralcio, dove il cliente viene seguito in tutto il percorso relativo all' acquisto tramite aste giudiziarie.
L' immobile viene venduto dal tribunale ed il prezzo indicato si riferisce all' offerta minima.
Contattaci per fissare un appuntamento per avere maggiori informazioni.
Per maggiori informazioni:
MILANO, VIA GIUSEPPE TARTINI, 12 (MI)
+39 3392588984
+39 3427176507

Per maggiori informazioni:
MILANO, VIA GIUSEPPE TARTINI, 12 (MI)
+39 3392588984
+39 3427176507


Caratteristiche principali
Codice
SNO175
Città
Milano (Chiesa Rossa/ Cermenate/ Ripamonti)
Categoria
4 o più locali
Prezzo
141.750 €
Locali
4
Mq
264
Box
1
Piano
Terra
Classe energetica
G
Stato Immobile
Rustico
Grado
Medio
Posizione
Periferia
Panorama
Vista Aperta
Orientamento
Nord Ovest Sud Est
Giardino
Privato
Arredi
Non Arredato
Tipo Soggiorno
Sala da Pranzo
Tipo Cucina
A Vista
Riscaldamento
Autonomo
Pavim. Giorno
Cemento
Pavim. Notte
Cemento
Pavim. Cucina
Cemento
Pavim. Bagno
Cemento
Mappa
Via Rozzano SNC, Milano (MI)
Condividi su
Cookie preference