Italiano
111.000 €

NEGOZIO ALL'ASTA

Negozio in vendita • Seregno - Via Livio Colzani , 110
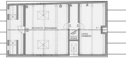
negozio già adibito a pizzeria, 171,45 mq commerciali, p.t: locale centrale, locale preparazione, cella frigorifera, bagno, spogliatoio con bagno, ascensore. sottotetto non abitabile.
negozio già adibito a pizzeria, 171,45 mq commerciali, p.t: locale centrale, locale preparazione, cella frigorifera, bagno, spogliatoio con bagno, ascensore. sottotetto non abitabile.
AFFARI ALL'ASTA è uno studio di consulenza che si occupa di aste immobiliari e saldo stralcio, dove il cliente viene seguito in tutto il percorso relativo all' acquisto tramite aste giudiziarie.
L' immobile viene venduto dal tribunale ed il prezzo indicato si riferisce all' offerta minima.
Contattaci per fissare un appuntamento per avere maggiori informazioni.
Per maggiori informazioni:
MILANO, VIA GIUSEPPE TARTINI, 12 (MI)
+39 3392588984
+39 3427176507

Per maggiori informazioni:
MILANO, VIA GIUSEPPE TARTINI, 12 (MI)
+39 3392588984
+39 3427176507


Caratteristiche principali
Codice
SNO172
Città
Seregno
Categoria
Negozio
Prezzo
111.000 €
Locali
1
Bagni
1
Mq
171
Piano
Terra
Classe energetica
G
Stato Immobile
Buono
Grado
Medio
Posizione
Periferia
Panorama
Vista Aperta
Orientamento
Nord Ovest Sud Est
Arredi
Semi Arredato
Riscaldamento
Autonomo
Tipo Riscaldam.
Caldaia
Tipo Impianto
Radiatori
Fonte Energetica
Metano
Infissi
Legno
Serramenti
Buono
Pavimento
Ceramica
Numero Vetrine
Due
Mappa
Via Livio Colzani 110, Seregno (MB)
Condividi su
Cookie preference