Italiano
63.855 €

NEGOZIO ALL'ASTA

Negozio in vendita • Gavirate - Via Corridoni , 2
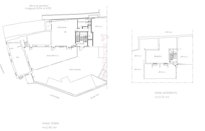
unità commerciale composta da zona bar, spazio cottura, ristorante, locale tecnico, blocco wc/spogliatoio al piano terra con annesso deposito al piano interrato, area urbana posta al piano terra
unità commerciale composta da zona bar, spazio cottura, ristorante, locale tecnico, blocco wc/spogliatoio al piano terra con annesso deposito al piano interrato, area urbana posta al piano terra
AFFARI ALL'ASTA è uno studio di consulenza che si occupa di aste immobiliari e saldo stralcio, dove il cliente viene seguito in tutto il percorso relativo all' acquisto tramite aste giudiziarie.
L' immobile viene venduto dal tribunale ed il prezzo indicato si riferisce all' offerta minima.
Contattaci per fissare un appuntamento per avere maggiori informazioni.
Per maggiori informazioni:
MILANO, VIA GIUSEPPE TARTINI, 12 (MI)
+39 3392588984
+39 3427176507

Per maggiori informazioni:
MILANO, VIA GIUSEPPE TARTINI, 12 (MI)
+39 3392588984
+39 3427176507


Caratteristiche principali
Codice
SNO168
Città
Gavirate
Categoria
Negozio
Prezzo
63.855 €
Locali
1
Mq
264
Posti auto
1
Piano
Terra
Classe energetica
G
Stato Immobile
Buono
Grado
Medio
Posizione
Centro
Panorama
Vista Aperta
Orientamento
Nord Ovest Sud Est
Arredi
Semi Arredato
Riscaldamento
Autonomo
Tipo Riscaldam.
Caldaia
Tipo Impianto
Radiatori
Fonte Energetica
Metano
Infissi
PVC
Serramenti
Buono
Pavimento
Ceramica
Numero Vetrine
Due

Accessori: Aria Condizionata

Mappa
Via Corridoni 2, Gavirate (VA)
Condividi su
Cookie preference