Italiano
225.000 €

BILOCALE ALL'ASTA

2 locali in vendita • Daverio
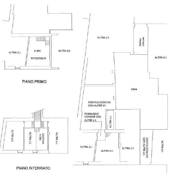
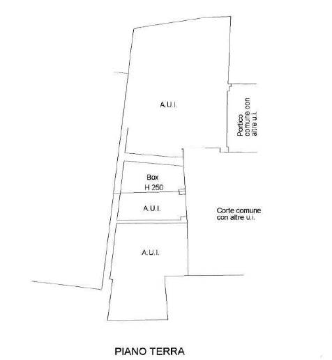
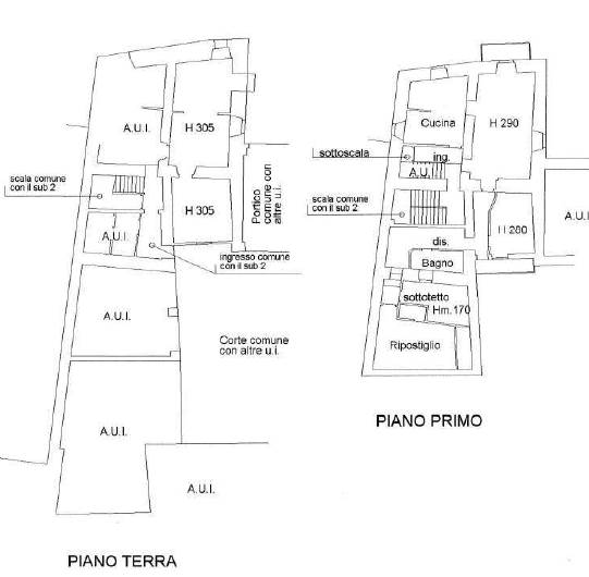
- unità immobiliare a destinazione residenziale composta: a piano terra: da ingresso comune con altri subalterni, disimpegno, bagno, cucinotto, taverna/soggiorno; al piano primo collegato da scala interna da soggiorno, cucina, camera da letto e ripostiglio, autorimessa, giardino privato, tettoia esterna, della superficie commerciale di 198 mq
AFFARI ALL'ASTA è uno studio di consulenza che si occupa di aste immobiliari e saldo stralcio, dove il cliente viene seguito in tutto il percorso relativo all' acquisto tramite aste giudiziarie.
L' immobile viene venduto dal tribunale ed il prezzo indicato si riferisce all' offerta minima.
Contattaci per fissare un appuntamento per avere maggiori informazioni.
Per maggiori informazioni:
MILANO, VIA GIUSEPPE TARTINI, 12 (MI)
+39 3392588984
+39 3427176507

Per maggiori informazioni:
MILANO, VIA GIUSEPPE TARTINI, 12 (MI)
+39 3392588984
+39 3427176507


Caratteristiche principali
Codice
SNO164
Città
Daverio
Categoria
2 locali
Prezzo
225.000 €
Locali
2
Bagni
1
Mq
198
Box
1
Posti auto
1
Piano
1
Classe energetica
G
Stato Immobile
Buono
Grado
Medio
Posizione
Centro Storico
Panorama
Vista Aperta
Orientamento
Nord Ovest Sud Est
Giardino
Privato
Arredi
Semi Arredato
Tipo Soggiorno
Sala da Pranzo
Tipo Cucina
A Vista
Riscaldamento
Autonomo
Tipo Riscaldam.
Caldaia
Tipo Impianto
Radiatori
Fonte Energetica
Metano
Infissi
Legno Doppio Vetro
Serramenti
Buono
Persiana
Persiana Legno
Pavim. Giorno
Ceramica
Pavim. Notte
Parquet
Pavim. Cucina
Ceramica
Pavim. Bagno
Ceramica

Accessori: Ripostiglio

Condividi su
Cookie preference