Italiano
288.000 €

QUADRILOCALE ALL'ASTA

4 o più locali in vendita • Busto Arsizio - Via BARAGGIOLI , 3
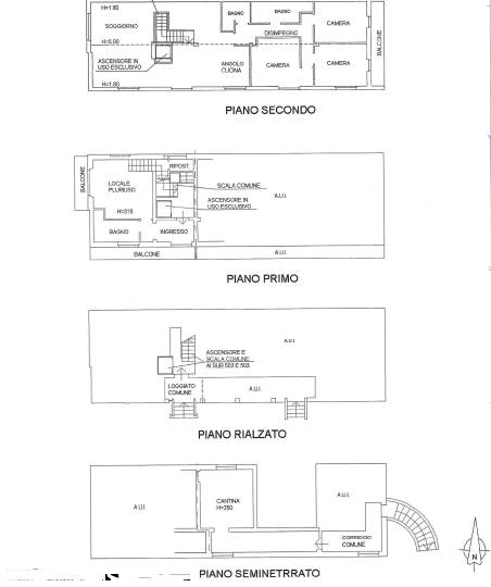
appartamento ad uso abitazione, disposto su due piani di un edificio in linea, della superficie commerciale di 223 mq, composto da quattro locali con doppi servizi, posto al piano secondo e terzo
appartamento ad uso abitazione, disposto su due piani di un edificio in linea, della superficie commerciale di 223 mq, composto da quattro locali con doppi servizi, posto al piano secondo e terzo
AFFARI ALL'ASTA è uno studio di consulenza che si occupa di aste immobiliari e saldo stralcio, dove il cliente viene seguito in tutto il percorso relativo all' acquisto tramite aste giudiziarie.
L' immobile viene venduto dal tribunale ed il prezzo indicato si riferisce all' offerta minima.
Contattaci per fissare un appuntamento per avere maggiori informazioni.
Per maggiori informazioni:
MILANO, VIA GIUSEPPE TARTINI, 12 (MI)
+39 3392588984
+39 3427176507

Per maggiori informazioni:
MILANO, VIA GIUSEPPE TARTINI, 12 (MI)
+39 3392588984
+39 3427176507


Caratteristiche principali
Codice
SNO162
Città
Busto Arsizio
Categoria
4 o più locali
Prezzo
288.000 €
Locali
4
Bagni
2
Mq
223
Box
1
Piano
2
Classe energetica
G
Stato Immobile
Buono
Grado
Medio
Posizione
Periferia
Panorama
Vista Aperta
Orientamento
Nord Ovest Sud Est
Giardino
Cortile
Arredi
Semi Arredato
Tipo Soggiorno
Sala da Pranzo
Tipo Cucina
A Vista
Riscaldamento
Autonomo
Tipo Riscaldam.
Caldaia
Tipo Impianto
Radiatori
Fonte Energetica
Metano
Infissi
PVC
Serramenti
Buono
Persiana
Tapparella PVC
Pavim. Giorno
Ceramica
Pavim. Notte
Ceramica
Pavim. Cucina
Ceramica
Pavim. Bagno
Ceramica

Accessori: Aria Condizionata, Ascensore, Porta Blindata, Ripostiglio

Mappa
Via BARAGGIOLI 3, Busto Arsizio (VA)
Condividi su
Cookie preference