Italiano
288.750 €

VILLA SINGOLA ALL'ASTA

4 o più locali in vendita • Bovisio Masciago - Corso italia, 56
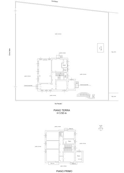
Villa singola a Bovisio Masciago Corso Italia, 56 - Viale Edison 4, della superficie commerciale di 458 mq per la quota di 1/1 di proprietà. Edificio distribuito su tre piani con area a giardino-cortile. Piano terra: ingresso, soggiorno, pranzo, cucina, locale studio e due bagni. Piano primo: corridoio, cucina, quattro camere, due bagni, tre balconi. Piano interrato: tre vani cantina, bagno, locale caldaia e passaggio all'autorimessa. Completa un rustico e autorimessa interrata.
AFFARI ALL'ASTA è uno studio di consulenza che si occupa di aste immobiliari e saldo stralcio, dove il cliente viene seguito in tutto il percorso relativo all' acquisto tramite aste giudiziarie.
L' immobile viene venduto dal tribunale ed il prezzo indicato si riferisce all' offerta minima.
Contattaci per fissare un appuntamento per avere maggiori informazioni.
Per maggiori informazioni:
MILANO, VIA GIUSEPPE TARTINI, 12 (MI)
+39 3392588984
+39 3427176507

Per maggiori informazioni:
MILANO, VIA GIUSEPPE TARTINI, 12 (MI)
+39 3392588984
+39 3427176507


Caratteristiche principali
Codice
SNO152
Città
Bovisio Masciago
Categoria
4 o più locali
Prezzo
288.750 €
Locali
7
Bagni
5
Mq
458
Box
1
Piano
Terra
Classe energetica
G
Stato Immobile
Buono
Grado
Medio
Posizione
Centro
Panorama
Vista Aperta
Orientamento
Nord Ovest Sud Est
Giardino
Privato
Arredi
Semi Arredato
Tipo Soggiorno
Sala da Pranzo
Tipo Cucina
A Vista
Riscaldamento
Autonomo
Tipo Riscaldam.
Caldaia
Tipo Impianto
Radiatori
Fonte Energetica
Metano
Infissi
Legno
Serramenti
Buono
Persiana
Tapparella PVC
Pavim. Giorno
Ceramica
Pavim. Notte
Parquet
Pavim. Cucina
Ceramica
Pavim. Bagno
Ceramica

Accessori: Porta Blindata

Mappa
Corso italia 56, Bovisio Masciago (MB)
Condividi su
Cookie preference