Italiano
130.500 €

NEGOZIO ALL'ASTA

Negozio in vendita • Vedano al Lambro - Via Santo Stefano, 109
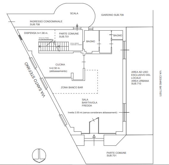
immobile adibito a bar della superficie commerciale di mq. 84,30, posto al piano terra con cantina, 3 vani e altro terreno composto da area esterna funzionale all'attività.
immobile adibito a bar della superficie commerciale di mq. 84,30, posto al piano terra con cantina, 3 vani e altro terreno composto da area esterna funzionale all'attività.
AFFARI ALL'ASTA è uno studio di consulenza che si occupa di aste immobiliari e saldo stralcio, dove il cliente viene seguito in tutto il percorso relativo all' acquisto tramite aste giudiziarie.
L' immobile viene venduto dal tribunale ed il prezzo indicato si riferisce all' offerta minima.
Contattaci per fissare un appuntamento per avere maggiori informazioni.
Per maggiori informazioni:
MILANO, VIA GIUSEPPE TARTINI, 12 (MI)
+39 3392588984
+39 3427176507

Per maggiori informazioni:
MILANO, VIA GIUSEPPE TARTINI, 12 (MI)
+39 3392588984
+39 3427176507


Caratteristiche principali
Codice
SNO151
Città
Vedano al Lambro
Categoria
Negozio
Prezzo
130.500 €
Locali
1
Mq
84
Piano
Terra
Classe energetica
G
Stato Immobile
Buono
Grado
Medio
Posizione
Centro
Panorama
Vista Aperta
Orientamento
Nord Ovest Sud Est
Arredi
Semi Arredato
Riscaldamento
Autonomo
Tipo Riscaldam.
Pompa di Calore
Tipo Impianto
Aria
Fonte Energetica
Elettrico
Infissi
Alluminio Doppio Vetro
Serramenti
Buono
Pavim. Bagno
Ceramica
Pavimento
Parquet
Numero Vetrine
Due

Accessori: Aria Condizionata

Mappa
Via Santo Stefano 109, Vedano al Lambro (MB)
Condividi su
Cookie preference