Italiano
64.275 €

VILLA ALL'ASTA

4 o più locali in vendita • Borgo Priolo - Via Marconi, 18
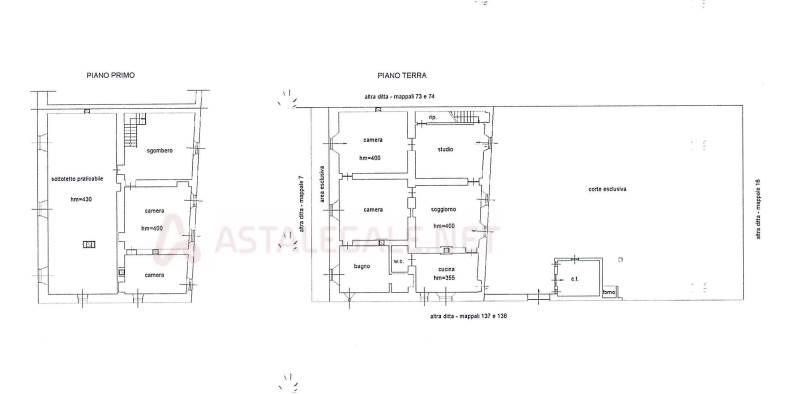
dimora storica su due piani fuori terra con giardino pertinenziale e rustico in corpo staccato, con accessi principali da via guglielmo marconi n.18 e da via maestra 47. si precisa che il seminterrato, particella autonoma con accesso indipendente, non è compreso nel presente lotto ma nel lotto 1. il piano terra è distribuito con soggiorno, cucina, bagno di servizio, studio, due camere con accesso a piccola area esterna esclusiva, bagno padronale e ripostiglio sottoscala; tramite scala interna si accede al piano primo composto da locale di sgombero, due camere e vano sottotetto praticabile. la villa dispone di cortile pertinenziale esclusivo, lato ovest, con entrostante, in corpo staccato, rustico destinato a centrale termica e porticato
AFFARI ALL'ASTA è uno studio di consulenza che si occupa di aste immobiliari e saldo stralcio, dove il cliente viene seguito in tutto il percorso relativo all' acquisto tramite aste giudiziarie.
L' immobile viene venduto dal tribunale ed il prezzo indicato si riferisce all' offerta minima.
Contattaci per fissare un appuntamento per avere maggiori informazioni.
Per maggiori informazioni:
MILANO, VIA GIUSEPPE TARTINI, 12 (MI)
+39 3392588984
+39 3427176507

Per maggiori informazioni:
MILANO, VIA GIUSEPPE TARTINI, 12 (MI)
+39 3392588984
+39 3427176507


Caratteristiche principali
Codice
SNO144
Città
Borgo Priolo
Categoria
4 o più locali
Prezzo
64.275 €
Locali
6
Bagni
1
Mq
445
Piano
Terra
Classe energetica
G
Stato Immobile
Buono
Grado
Medio
Posizione
Centro
Panorama
Vista Aperta
Orientamento
Nord Ovest Sud Est
Giardino
Privato
Arredi
Semi Arredato
Tipo Soggiorno
Sala da Pranzo
Tipo Cucina
A Vista
Riscaldamento
Autonomo
Tipo Riscaldam.
Caldaia
Tipo Impianto
Radiatori
Fonte Energetica
Metano
Infissi
Legno
Serramenti
Buono
Persiana
Persiana Legno
Pavim. Giorno
Ceramica
Pavim. Notte
Ceramica
Pavim. Cucina
Ceramica
Pavim. Bagno
Ceramica
Mappa
Via Marconi 18, Borgo Priolo (PV)
Condividi su
Cookie preference